Участок под застройку Продажа

€ 195 000
1 200 m²

Пометка

Объявление обновлено 25.03.2026
Описание

ID: E1152

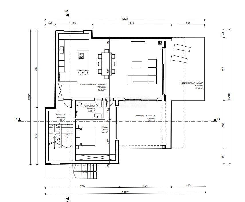
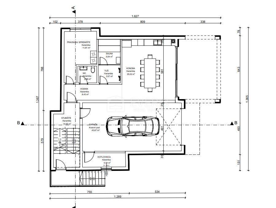
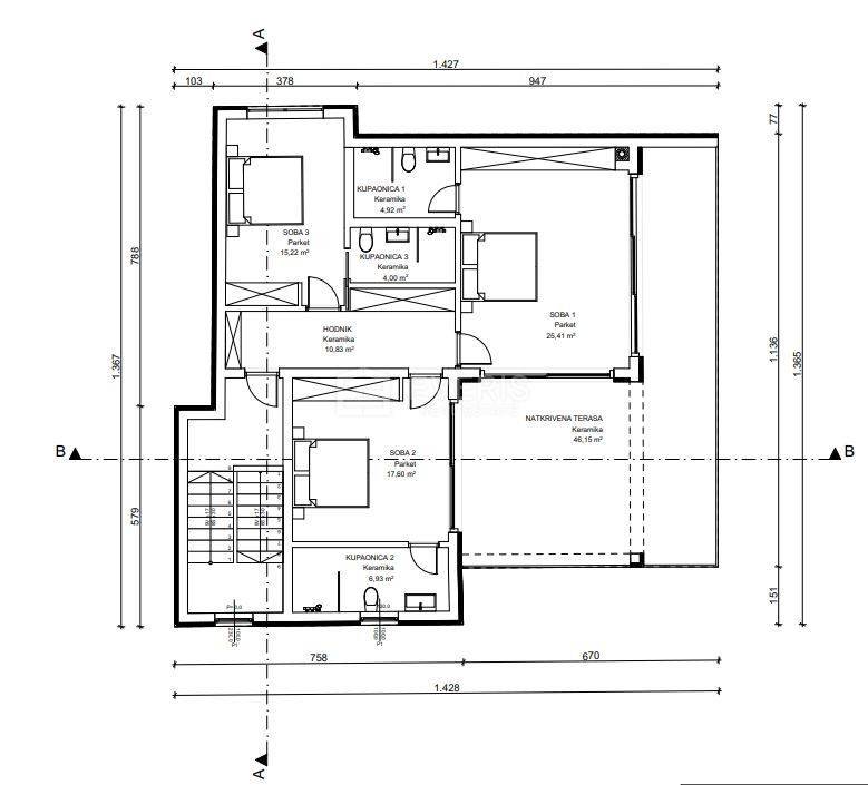
Opatija okolica, Pobri, prodajemo zemljište 1200 m2 sa započetom gradnjom, izgrađena suterenska etaža na parceli.

Ishodovana je dozvola za izgradnju obiteljske kuće S+P+1.
Djelomičan pogled na more.

Za sve dodatne informacije slobodno nas kontaktirajte.

Poštovani klijenti, agencijska provizija naplaćuje se u skladu s Općim uvjetima poslovanja
EVERIS REAL ESTATE, koje možete preuzeti na našoj web stranici https://nekretnine.everis.hr/o-nama/opci-uvjeti-poslovanja

ID CODE: E1152

Marin Modić
Agent s licencom
Mob: +385 (91) 5954 045
Tel: +385 (0)91 5954 045
E-mail: m.modic@everis.hr
https://nekretnine.everis.hr/
Характеристики
Договор
Продажа
Типология
Участок под застройку
Площадь
1 200 m²
Информация о ценах
Цена
€ 195 000
Цена за м²
163 €/m²
Планировка
Откройте для себя каждый уголок объекта недвижимости
+13
Доп. опции

Свяжитесь с рекламодателем

Или