Офис - Студия Продажа

€ 178 000
5+
237 m²
3

Пометка

Объявление обновлено 22.01.2026
Описание

ID: 2608

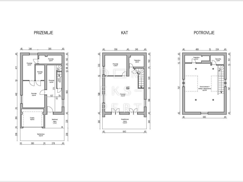
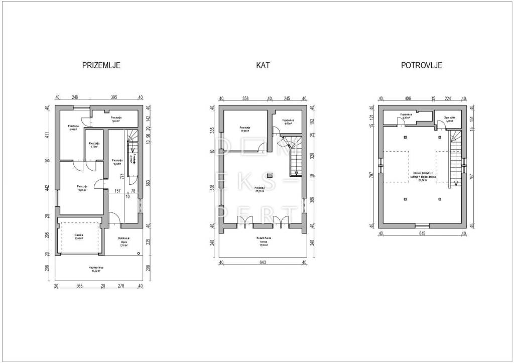
Prodaje se poslovna zgrada površine 237.79 m² na parceli površine 567 m² u naselju Bukovec Zelinski, Sveti Ivan Zelina.

Zgrada se sastoji od prizemlja, kata i potkrovlja.
PRIZEMLJE:
- garaža
- natkrivena terasa
- ulazni hodnik
- spremište ispod stepenica
- prostorija
- kupaonica
- toalet
- kotlovnica/spremište

KAT:
- velika prostorija
- manja prostorija
- kupaonica
- nenatkrivena terasa

POTKROVLJE:
- kuhinja s blagovaonicom i dnevnim boravkom
- kupaonica
- spremište

Etaže su povezane unutarnjim stubištem, a potkrovlje je uređeno kao stan.
Zgrada je izgrađena 1997. godine, a 2020. godine promijenjene su sve instalacije u stanu u potkrovlju i stavljen je novi pokrov - šindra.

Vanjska i unutarnja stolarija je drvena, a svaka etaža ima po jedan klima uređaj.
INFRASTRUKTURA:
- struja
- gradska voda
- plin
- odvodnja je riješena putem sabirne jame

Za grijanje i hlađenje prostora koriste se klima uređaji, a za plinsko grijanje potrebno je ugraditi plinski bojler.

Vlasnička dokumentacija je uredna te je moguća kupnja putem kredita banke.

LOKACIJA:
Bukovec Zelinski - mirno naselje nadomak Svetog Ivana Zeline, udaljen od centra Sesveta 14 km, a do izlaza na obilaznicu Sveta Helena ima svega 5 km.

KONTAKT:
Valentina Banovec
Tel: +385 1 2013 007
Mob: +385 99 4620 956
Mail: valentina.banovec@domekspert.hr

ID CODE: 2608
Характеристики
Договор
Продажа
Типология
Офис - Студия
Площадь
237 m²
Помещения
5+ помещения, 3 ванных
Этажность здания
3
Гараж, машиноместа
1 в частный гараж/парковка
Информация о ценах
Цена
€ 178 000
Цена за м²
751 €/m²
Энергоэффективность

Потребление энергии

C

Планировка
Откройте для себя каждый уголок объекта недвижимости
+21
Доп. опции

Свяжитесь с рекламодателем

Или