1/32


Трехкомнатная квартира Opatija, Centar, Opatija
€ 706 200
Объявление обновлено 22.01.2026
Описание
ID: E3249
ID CODE: E3249
Marin Modić
Agent s licencom
Mob: +385 (91) 5954 045
Tel: +385 (0)91 5954 045
E-mail: m.modic@everis.hr
https://nekretnine.everis.hr/
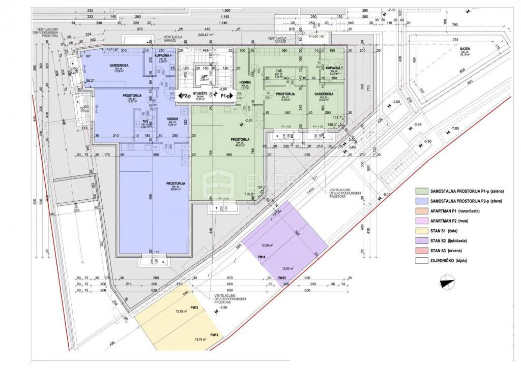
Характеристики
- Типология
- Квартира
- Договор
- Продажа
- Этаж
- 1 этаж
- Этажность здания
- 3
- Лифт
- Нет
- Площадь
- 103 m²
- Помещения
- 3
- Спальни
- 2
- Ванные
- 2
- Балкон
- Нет
- Терраса
- Да
- Гараж, машиноместа
- 1 в частный гараж/парковка, 1 в общая парковка/гараж
Информация о ценах
- Цена
- € 706 200
- Цена за м²
- 6 856 €/m²
Откройте для себя каждый уголок объекта недвижимости
Доп. опции