1/36


Квартира Kožino, Zadar - Okolica, Petrčane - Kožino, Задар
€ 646 000
Объявление обновлено 22.01.2026
Описание
ID: 198
ID CODE: 198
Ivana Ančić
Voditelj ureda
Mob: +385 95 73 55 171
Tel: +385 95 588 8082
E-mail: info@prestigeinvest.hr
www.prestigeinvest.hr
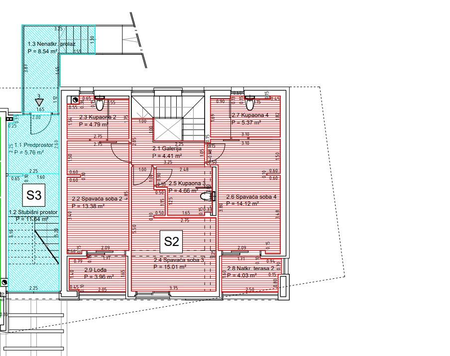
Характеристики
- Типология
- Квартира
- Договор
- Продажа
- Этаж
- Нулевой этаж
- Этажность здания
- 1
- Лифт
- Нет
- Площадь
- 184 m²
- Помещения
- 5
- Спальни
- 4
- Ванные
- 3+
- Балкон
- Нет
- Терраса
- Да
- Гараж, машиноместа
- 3 в общая парковка/гараж
- Отопление
- Автономное, воздушное
- Кондиционер
- Автономное, холод/тепло
Другие характеристики
Информация о ценах
- Цена
- € 646 000
- Цена за м²
- 3 511 €/m²
Энергоэффективность
Откройте для себя каждый уголок объекта недвижимости
Доп. опции