Отдельный дом на одну семью Krk, Centar, Krk

€ 260 000
5+
197 m²
2
Нет
Терраса

Пометка

Объявление обновлено 06.02.2026
Описание

This description has been translated automatically and may not be accurate

ID: 4582

Surroundings of the town of Krk – detached house with project and building permit

For sale is a detached house in the surroundings of the town of Krk, ideal as an investment, with a valid building permit and a reconstruction project. The property is situated on a plot of 401 m², and the house consists of a ground floor and first floor, with a total gross surface area of 197 m².

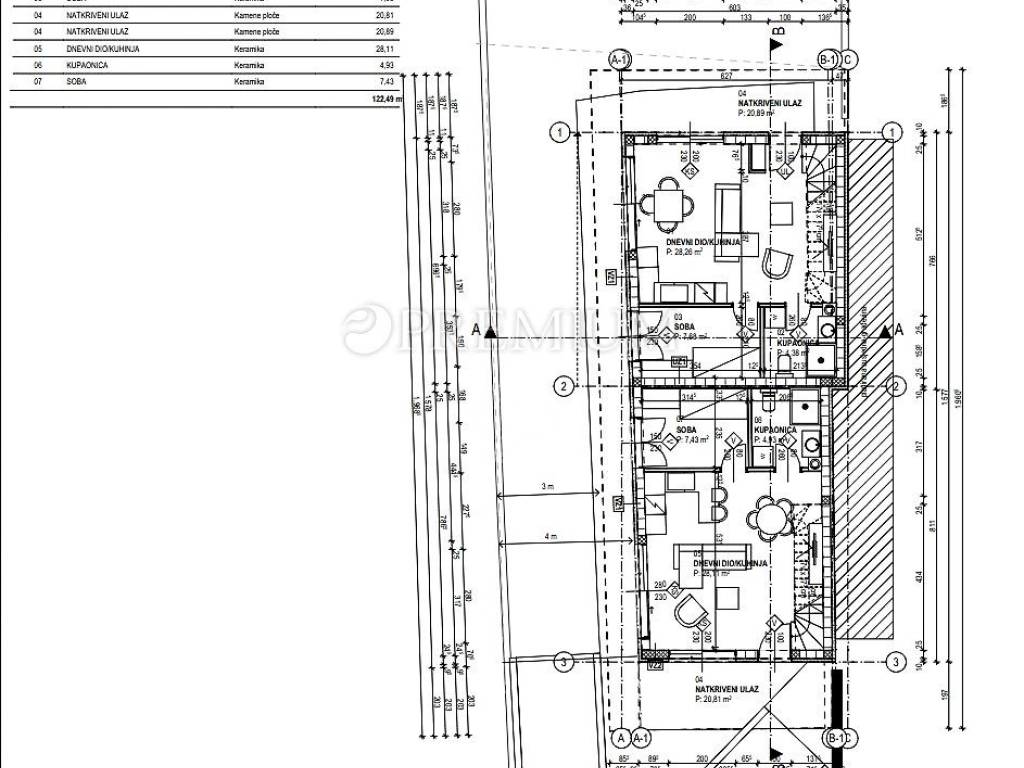
Currently, the ground floor is used as a storage area, while the first floor comprises two bedrooms, a bathroom, a kitchen with dining area and a living room.

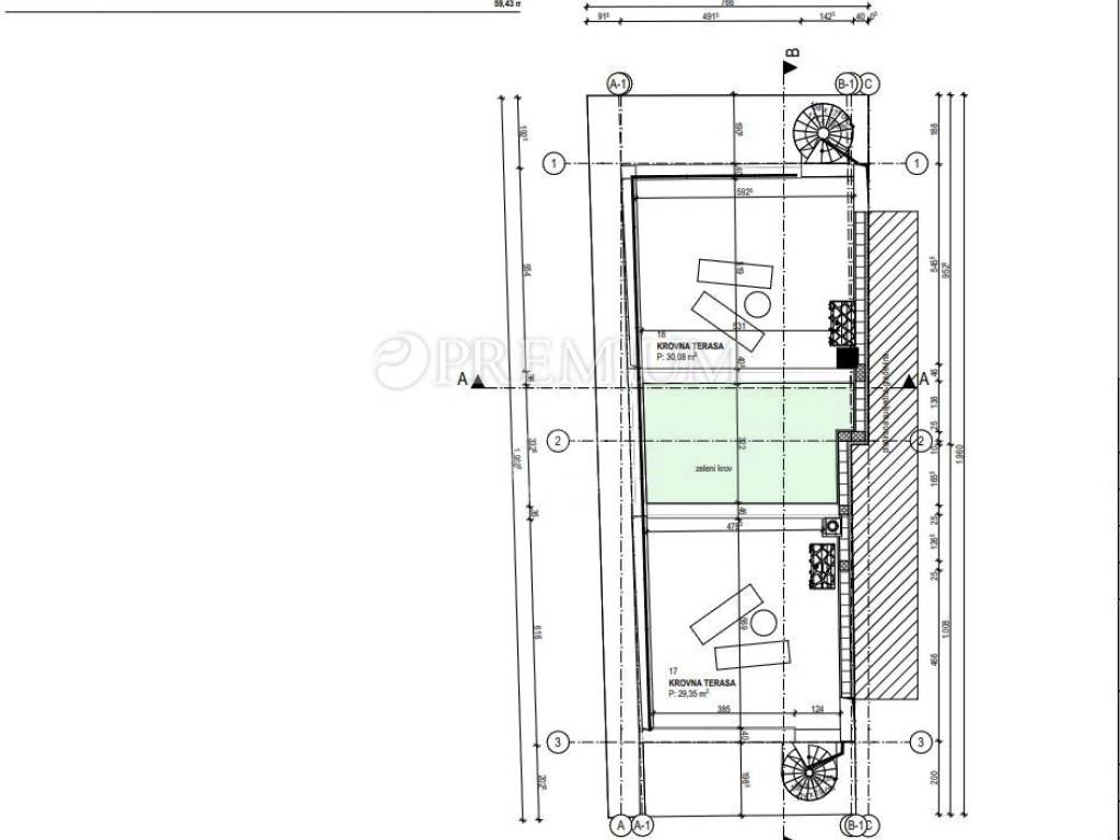
According to the reconstruction project, a detached house with two residential units is planned, consisting of a ground floor and first floor, with roof terraces, with a total surface area of 277 m². Each residential unit is designed as a two-level apartment with a functional and clearly separated living and sleeping area. The ground floor includes an entrance area, a living room with kitchen and dining area, a bathroom and one bedroom, while the first floor comprises three bedrooms, two bathrooms and a hallway, with associated balconies. On the roof level, each apartment has its own roof terrace, designed as a private outdoor area for relaxation and outdoor living. From the roof terraces, a sea view is expected. Two parking spaces are provided for each residential unit on the landscaped plot.

The house is located in a quiet area, close to all necessary amenities, only 1 km from the sea.

ID CODE: 4582

Premium nekretnine Malinska
Mob: +385915474709
Tel: +38551858364
E-mail: info@premium-nekretnine.com
Характеристики
Типология
Отдельный дом на одну семью
Договор
Продажа
Этажность здания
1
Лифт
Нет
Площадь
197 m²
Помещения
5+
Спальни
6
Ванные
2
Балкон
Нет
Терраса
Да
Гараж, машиноместа
4 в общая парковка/гараж
Информация о ценах
Цена
€ 260 000
Цена за м²
1 320 €/m²
Энергоэффективность
  • Год постройки

    1984
  • Энергетическая сертификация

    Не классифицирована
Откройте для себя каждый уголок объекта недвижимости
+8
Доп. опции

Свяжитесь с рекламодателем

Или