Отдельный дом на несколько семей Remete, Maksimir, Bukovac - Remete, Загреб

€ 349 000
5+
230 m²
3
Нет
Балкон
Терраса

Пометка

Объявление обновлено 23.04.2026
Описание

This description has been translated automatically and may not be accurate

ID: 5627

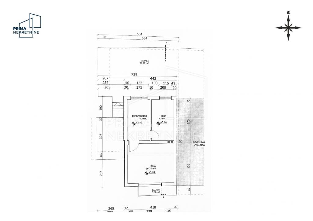
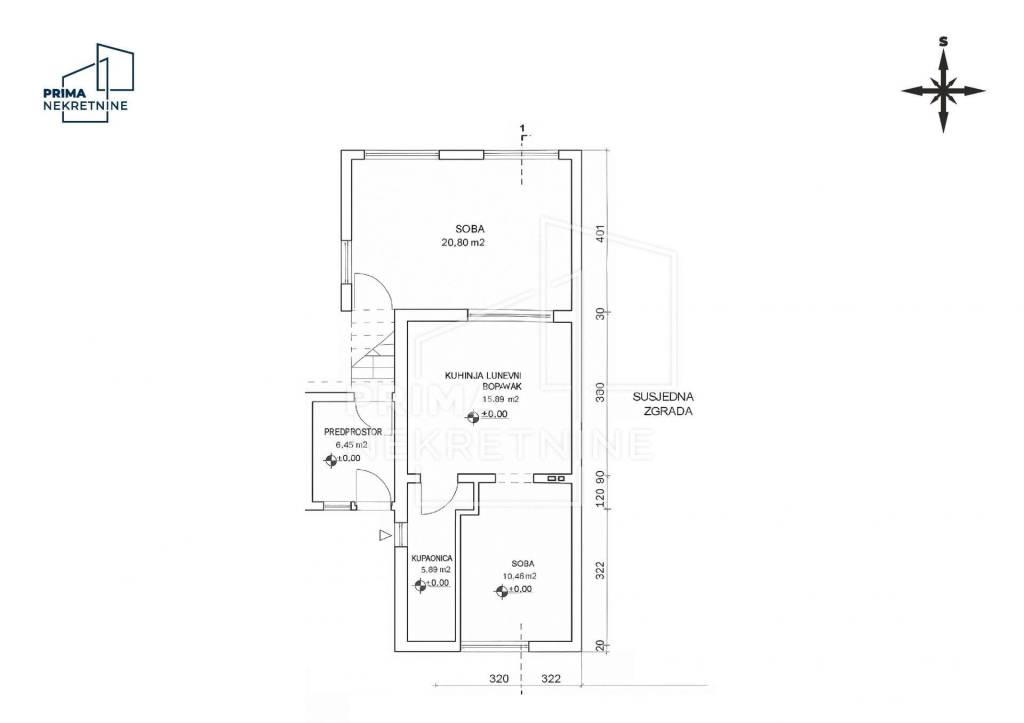
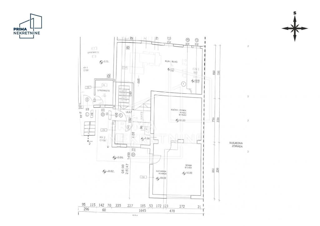
A three-story house for sale, with a total area of 230 m² and a 650 m² yard, located in a quiet street in Remete.

Each floor has a separate entrance. The ground floor consists of a kitchen with a dining area, bathroom, living room, two bedrooms, and a 50 m² terrace. The first floor includes two bedrooms, a kitchen, hallway, bathroom, and a 30 m² terrace. The second floor (attic) comprises a storage room, large living room, kitchen, bedroom, bathroom, and an 18 m² terrace.

The property includes a garden and yard of 650 m², as well as three uncovered parking spaces.

The house was built in 1964 and completely renovated in 2023 — including new electrical, water, gas, and sewage connections, installation of fiber optic internet cables, reinforced and waterproofed foundations, a new facade and roof, and new PVC windows.

Located on a quiet street with good transport connections, the house is 500 meters from Remete Elementary School and three bus lines (226, 207, 203) that connect to Donje Svetice, Kaptol, and Kvaternik Square.

ID CODE: 5627
Характеристики
Типология
Отдельный дом на несколько семей
Договор
Продажа
Этажность здания
2
Лифт
Нет
Площадь
230 m²
Помещения
5+
Спальни
5
Ванные
3
Балкон
Да
Терраса
Да
Гараж, машиноместа
3 в общая парковка/гараж
Отопление
Централизованное, напольное
Информация о ценах
Цена
€ 349 000
Цена за м²
1 517 €/m²
Энергоэффективность

Потребление энергии

A

Планировка
Откройте для себя каждый уголок объекта недвижимости
+18
Доп. опции

Свяжитесь с рекламодателем

Или