Четырехкомнатная квартира Sukošan, Sukošan

€ 291 712
4
91 m²
2
1
Нет
Терраса

Пометка

Объявление обновлено 02.03.2026
Описание

This description has been translated automatically and may not be accurate

ID: 706

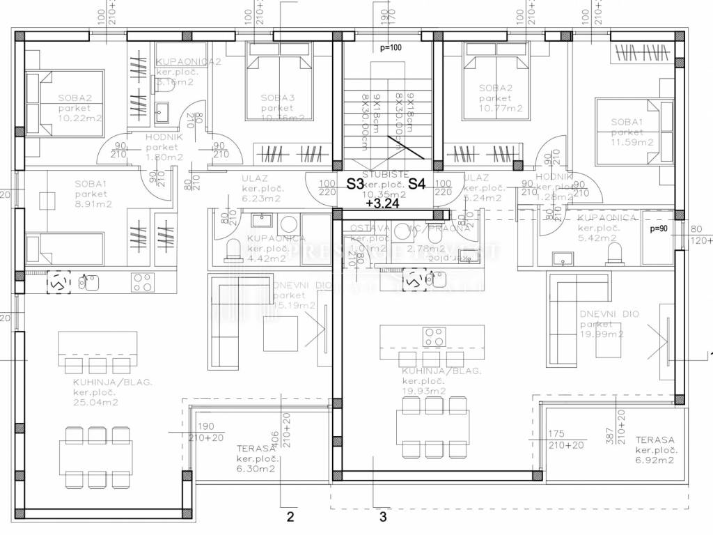
Sukošan, NEWLY BUILT two-bedroom apartment S4 - 1ST FLOOR

BUILDING with six residential units spread over three floors: ground floor, 1st and 2nd floor.

Each apartment has one parking space and storage room.
The penthouses also have roof terraces.

Area breakdown:
Entrance: 6.23m²
Living room: 15.19m²
Kitchen and dining room: 25.04m²
Bathroom 1: 4.42m²
Bathroom 2: 3.16m²
Bedroom 1: 10.36m²
Bedroom 2: 10.22m²
Bedroom 3: 8.91m²
Hallway: 1.80m²

Total net living area: 86.91m²
Total net usable area with accessories: 91.16m²

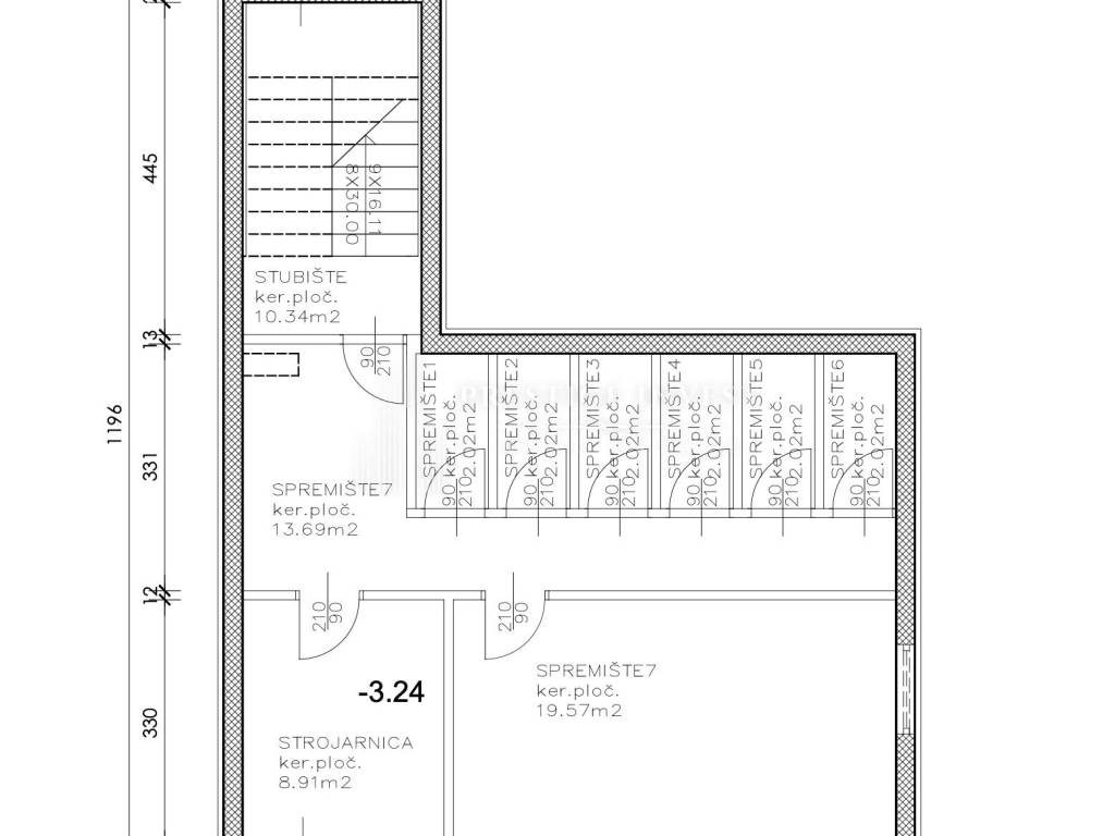
Appearance areas:
Loggia (6.30m² × 0.75): 4.72m²
Parking space: 2.75m²
Storage room: 2,02 m²

Other available residential units:
S3 (1st floor): 91.16m² – €273,480
S4 (1st floor): 83.69m² – €251,070
S5 (2nd floor, roof terrace): 87.82m² – €307,370
S6 (2nd floor, roof terrace): 83.69m² – €292,915

EQUIPMENT SPECIFICATIONS:
Underfloor heating and hot water preparation system via heat pump
Ceramic tiles and sanitary ware
Aluminum joinery with electric shutters and mosquito nets
Air conditioning in every room
Parquet floors in bedrooms; ceramic tiles in other rooms

Completion of construction: summer 2026

Ownership: legal entity in the VAT system
The buyer does not pay real estate tax

For additional information, photos, documentation or to arrange a viewing:
Phone: +385 95 73 55 171
E-mail: info@prestigeinvest.hr

ID CODE: 706

Ivana Ančić
Voditelj ureda
Mob: +385 95 73 55 171
Tel: +385 95 588 8082
E-mail: info@prestigeinvest.hr
www.prestigeinvest.hr
Характеристики
Типология
Квартира
Договор
Продажа
Этаж
1 этаж
Этажность здания
2
Лифт
Нет
Площадь
91 m²
Помещения
4
Спальни
3
Ванные
2
Балкон
Нет
Терраса
Да
Гараж, машиноместа
1 в общая парковка/гараж
Отопление
Автономное, воздушное
Кондиционер
Автономное, холод/тепло
Информация о ценах
Цена
€ 291 712
Цена за м²
3 206 €/m²
Энергоэффективность

Потребление энергии

A+

Откройте для себя каждый уголок объекта недвижимости
+51
Доп. опции

Свяжитесь с рекламодателем

Или