Отдельный дом на одну семью Vrhovec, Črnomerec, Šestinski dol, Загреб

€ 800 000
5
320 m²
3
Нет
Балкон
Терраса

Пометка

Объявление обновлено 05.03.2026
Описание

This description has been translated automatically and may not be accurate

ID: 5460

Two detached family houses with a panoramic view are for sale in Vrhovec.

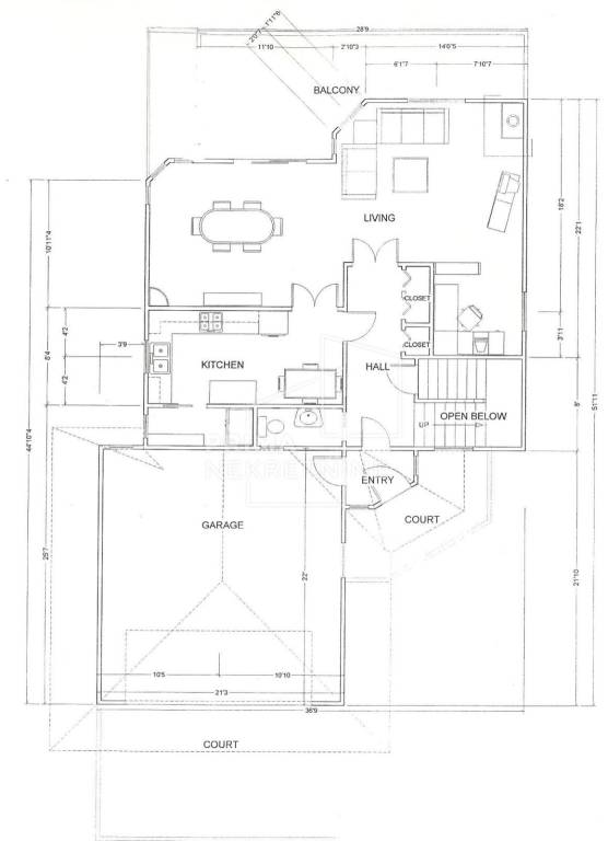
The first house has a surface area of 320 m² and consists of a basement, ground floor, and first floor.
The basement includes a staircase, boiler room, toilet, laundry room, two additional rooms, and a terrace.
The ground floor offers a garage for two vehicles, entrance, hallway, staircase, guest toilet, kitchen, dining room, living room, and a balcony.
The first floor comprises a hallway, large bathroom with toilet, three bedrooms, and a balcony.

The second house has a surface area of 240 m² and consists of a basement, ground floor, and attic.
The basement includes a storage room, utility room with heating system, two rooms, staircase, and a terrace.
The ground floor offers a covered parking space, entrance, foyer, bathroom with toilet, staircase, bedroom, living room, kitchen with dining area, and a balcony.
The attic consists of a staircase, bathroom with toilet, bedroom with a walk-in wardrobe, and a spacious living room with a balcony.

The plot on which the houses are located has a total area of 1,050 m².

In the courtyard, there is a swimming pool.
The property is located in a quiet area surrounded by greenery, close to a bus stop, school, kindergarten, and other essential amenities.

ID CODE: 5460
Характеристики
Типология
Отдельный дом на одну семью
Договор
Продажа
Лифт
Нет
Площадь
320 m²
Помещения
5
Спальни
3
Ванные
3
Балкон
Да
Терраса
Да
Гараж, машиноместа
1 в частный гараж/парковка, 5 в общая парковка/гараж
Отопление
Централизованное, напольное
Другие характеристики
  • Железная дверь
Информация о ценах
Цена
€ 800 000
Цена за м²
2 500 €/m²
Энергоэффективность
  • Год постройки

    1998
  • Отопление

    Централизованное, напольное
  • Энергетическая сертификация

    Не классифицирована
Планировка
Откройте для себя каждый уголок объекта недвижимости
+15
Доп. опции

Свяжитесь с рекламодателем

Или