Четырехкомнатная квартира Tribunj, Tribunj

€ 388 752
4
92 m²
2
1
Нет
Терраса

Пометка

Объявление обновлено 28.01.2026
Описание

This description has been translated automatically and may not be accurate

ID: 7299-1K1

Tribunj – new construction, a multi-family building with 9 residential units. The building offers panoramic sea views and consists of four floors: basement + ground floor + 1st floor + 2nd floor. The building has a modern design and will be equipped with high-quality floor coverings, interior and exterior joinery, air conditioning for heating and cooling in every room, and electric roller shutter lifts. Each residential unit has its own parking space and one storage room in the basement. The building is only 700 m from Bristak Beach and 950 m from the center and all essential amenities. The expected move-in date is the end of 2026.

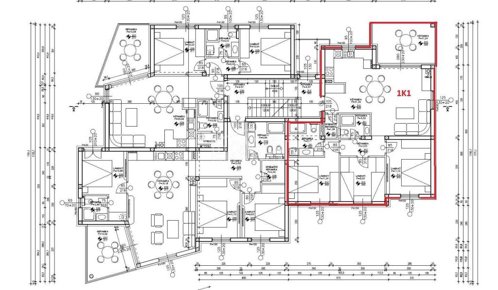
Residential unit 1K1 is located on the first floor of the building, oriented to the northeast, and has a usable area of 92.56 m². In the front part of the apartment, there is a spacious kitchen with a dining area and a living room with access to a terrace of 11.24 m², offering a sea view. The apartment also includes a bathroom, a storage room, and a hallway leading to three bedrooms, one of which has its own bathroom.
The apartment comes with a storage room in the basement and one parking space.

Another residential unit is also available in this building:
FLAT PR1
FLAT PR3
FLAT 1K2
FLAT 1K3
FLAT 2K1
FLAT 2K2
FLAT 2K3

ID CODE: 7299-1K1

Katarina Marasović
Mob: 00 385 98 392 954
Tel: +385 22 444 620
Fax: +385 22 444 621
E-mail: catherine@domus-nekretnine.hr
http://domus-nekretnine.hr

Diana Knežević
Mob: 00 385 95 289 4518
Tel: +385 22 444 620
Fax: +385 22 444 621
E-mail: knezevic@domus-nekretnine.hr
http://domus-nekretnine.hr

Martina Silov
Mob: 00385 95 587 8860
Tel: +385 22 444 620
Fax: +385 22 444 621
E-mail: martina@domus-nekretnine.hr
http://domus-nekretnine.hr
Характеристики
Типология
Квартира
Договор
Продажа
Этаж
1 этаж
Этажность здания
4
Лифт
Нет
Площадь
92 m²
Помещения
4
Спальни
3
Ванные
2
Балкон
Нет
Терраса
Да
Гараж, машиноместа
1 в общая парковка/гараж
Отопление
Автономное, воздушное
Другие характеристики
  • Железная дверь
Информация о ценах
Цена
€ 388 752
Цена за м²
4 226 €/m²
Энергоэффективность
  • Отопление

    Автономное, воздушное
  • Энергетическая сертификация

    Не классифицирована
Планировка
Доп. опции

Свяжитесь с рекламодателем

Или