Трехкомнатная квартира Martinkovac, Rijeka, Srdoči, Ријека

€ 260 000
3
66 m²
1
T
Да
Терраса

Пометка

Объявление обновлено 22.01.2026
Описание

This description has been translated automatically and may not be accurate

ID: 100-049

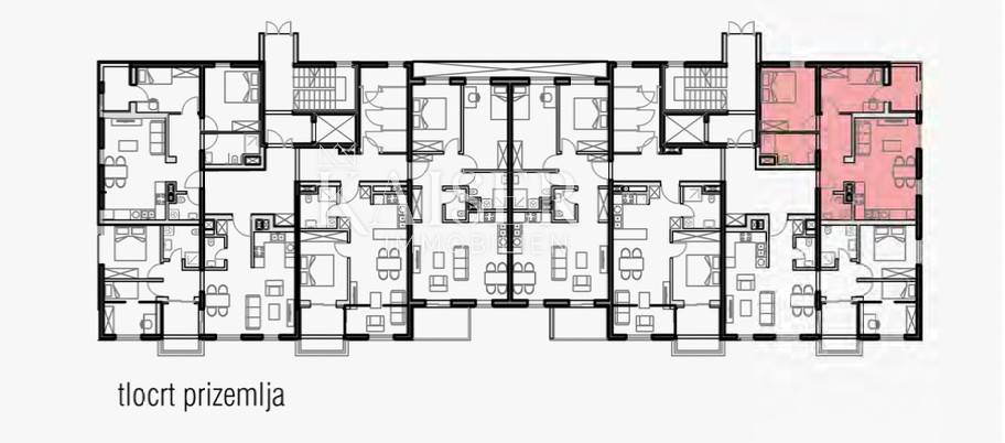
Kaiser Immobilien Exclusively markets a new project in Martinkovac. We present a wonderful apartment with a net area of 64.0m2 (total area = 66.30m2). The apartment has two bedrooms with a living room, it is equipped with a bathroom and a separate toilet, in which floor heating is installed, while the entire apartment has a heating, air conditioning and ventilation system. The apartment is located in a modern residential building with an elevator, north-east orientation. The apartment has a garden area of 44.0m2, as well as one covered parking space and a storage room. The buyer does not pay real estate tax. The expected completion of the works and occupancy is in 2024. For more information, contact with confidence.

ID CODE: 100-049

Dean Luić
Direktor
Mob: +385 99 214 0008
E-mail: dean@kaiser-immobilien.hr
www.kaiser-immobilien.hr
Характеристики
Типология
Квартира
Договор
Продажа
Этаж
Нулевой этаж
Этажность здания
4
Лифт
Да
Площадь
66 m²
Помещения
3
Спальни
2
Ванные
1
Балкон
Нет
Терраса
Да
Гараж, машиноместа
1 в общая парковка/гараж
Отопление
Автономное, воздушное
Кондиционер
Автономное, холод/тепло
Информация о ценах
Цена
€ 260 000
Цена за м²
3 939 €/m²
Энергоэффективность

Потребление энергии

A+

Откройте для себя каждый уголок объекта недвижимости
+11
Доп. опции

Свяжитесь с рекламодателем

Или