Участок под застройку Продажа

€ 299 000
649 m²

Пометка

Объявление обновлено 23.01.2026
Описание

ID: 105-217

Kaiser immobilien posreduje u prodaji atraktivnog građevinskog zemljišta sa panoramskim pogledom na more u okolici Opatije.

Zemljište je površine 649m2, pravilnog oblika, a konfiguracija terena je kaskadna što omogućava besprijekoran panoramski pogled na more.

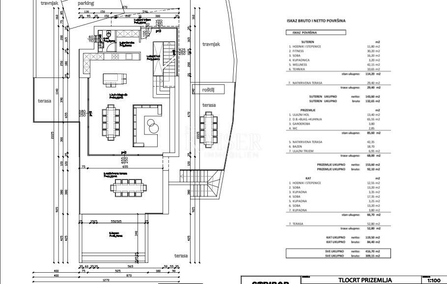
Za zemljište je izdana pravomoćna građevinska dozvola, sukladno projektu za ekskluzivnu villu na tri etaže, ukupne brutto površine 416,70m2 sa bazenom.

Struktura prostorija po projektu:

Suteren - 143,60m2
Prizemlje - 134,90m2
Kat - 119,50m2
Bazen - 18,70m2

Smješteno je samo 900 m od mora i centra mjesta, a sva potrebna infrastruktura nalazi se u blizini.

ID KOD 105-217

Provizija agencije za kupca iznosi 3% + PDV i plaća se u slučaju kupovine nekretnine, kod zaključenja prvog pravnog akta.

ID CODE: 105-217

Lado Patekar
Agent s licencom u posredovanju u prometu nekretnina
Mob: +385919390220, +385995677888
E-mail: lado@kaiser-immobilien.hr
www.kaiser-immobilien.hr
Характеристики
Договор
Продажа
Типология
Участок под застройку
Площадь
649 m²
Информация о ценах
Цена
€ 299 000
Цена за м²
461 €/m²
Откройте для себя каждый уголок объекта недвижимости
+5
Доп. опции

Свяжитесь с рекламодателем

Или