Трехкомнатная квартира новое, второй этаж, Arbanasi do Crno, Задар

€ 373 240
3
106 m²
1
2
Да
Терраса

Пометка

Объявление обновлено 27.01.2026
Описание

This description has been translated automatically and may not be accurate

ID: 5243

For sale is a high-quality project of a new residential complex, with controlled access, landscaped horticulture in the park, and a parking lot for tenants (possibility of electric vehicle charging) in a quiet location in Zadar, in the Ričin area.
This is a project of an apartment building with an elevator consisting of 8 apartments. The building has a ground floor, first, and second floors with access to roof terraces.
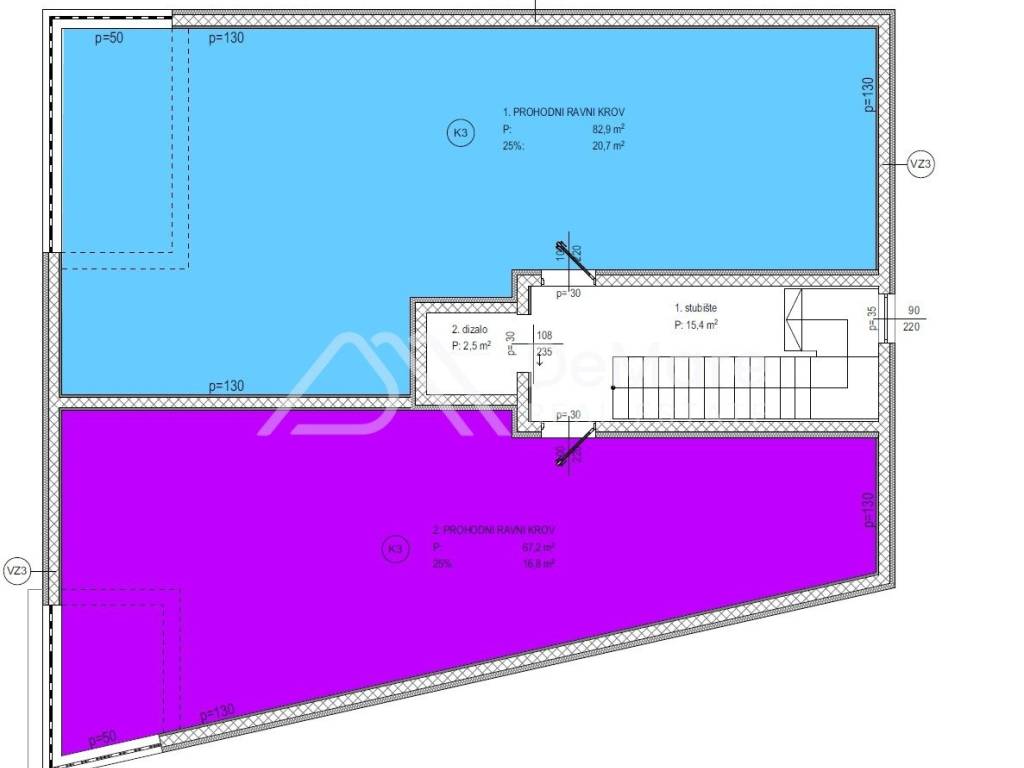
The roof of the building above the second floor is divided into two roof terraces, and each apartment located on the second floor has a separate roof terrace.
Construction is underway, and the expected completion of the works is at the end of 2026.
 
2 . FLOOR / PENTHOUSE S5 - Apartment with 2 bedrooms and a roof terrace
This apartment is located on the second floor and consists of:
- Entrance hall / 5.65 m2
- Living room, kitchen and dining room / 32.77 m2
- 2 bedrooms / 15.61 m2 and 11.32 m2
- Bathroom / 7.44 m2
- Loggia / 9.35 m2
The interior space of the apartment occupies 73.14 m2.
On the roof above the apartment there is a spacious terrace (82.91 m2) with a beautiful view of the city, which can be arranged and equipped for relaxation and outdoor living, according to the wishes of the future owners.
The apartment also includes two parking spaces (2 x 13.75 m2) in the building's yard.
The total useful calculated value of the apartment's area with all its belongings is 106.64 m2.
 
 
BUILDING FEATURES AND EQUIPMENT:
- Reinforced concrete building structure
- Knauf partition walls / double cladding
- 10 cm thermal facade
- PVC joinery / triple-layer insulated glass with built-in mosquito nets
- Electric roller shutters
- Underfloor heating installed in the living room and bathroom / Wifi control possible
- Air conditioning (heating and cooling) using a multi-split system / each room gets its own air conditioning unit
- First-class floor coverings (ceramics and parquet)
- Video intercom at the entrance to the building
- Elevator (from the ground floor to the roof terrace)
For all additional information, please contact us!
De Mare d.o.o.
Tel: +23 300 400
Mail: info@demare.hr
 
LOCATION:
The facility is located near all amenities needed for everyday life, as well as near a school, kindergarten and bus station.
The distance to the city center/peninsula is 3 km, and to the sea and the nearest beach is 2 km.
Zadar airport is only 8 km from the city center and is well connected to many European cities and destinations. The Zadar ferry port, which is 1.5 km away, has lines to most islands, and during the summer season is a stop for numerous tourist cruisers.
Если вы хотите узнать больше, вы можете поговорить с Ivo Strenja.
Характеристики
Типология
Квартира
Договор
Продажа
Этаж
2
Этажность здания
2
Лифт
Да
Площадь
106 m²
Помещения
3
Спальни
2
Ванные
1
Терраса
Да
Гараж, машиноместа
2 в общая парковка/гараж
Отопление
Автономное, воздушное, блок питания
Кондиционер
Автономное, холод/тепло
Расстояние до моря
2 m
Другие характеристики
  • Внешние рамы из стеклопакета / ПВХ
  • Видеодомофон
  • Железная дверь
Деталь поверхности

Жилой фонд

Этаж
2
Площадь
106,6 m²
Коэффициент
100%
Тип площади
Основная
Коммерческая площадь
106,6 m²
Информация о ценах
Цена
€ 373 240
Цена за м²
3 521 €/m²
Подробности о расходах
Плата за кондоминиум
Никаких кондоминиальных расходов
Энергоэффективность
  • Год постройки

    2026
  • Состояние

    Новое / На стадии строительства
  • Отопление

    Автономное, воздушное, блок питания
  • Кондиционер

    Автономное, холод/тепло
Откройте для себя каждый уголок объекта недвижимости
+5
Доп. опции

Свяжитесь с рекламодателем

Или