Отдельный дом на одну семью Dobrinj, Dobrinj

€ 1 150 000
5+
320 m²
3+
Нет
Терраса

Пометка

Объявление обновлено 28.01.2026
Описание

This description has been translated automatically and may not be accurate

ID: 369

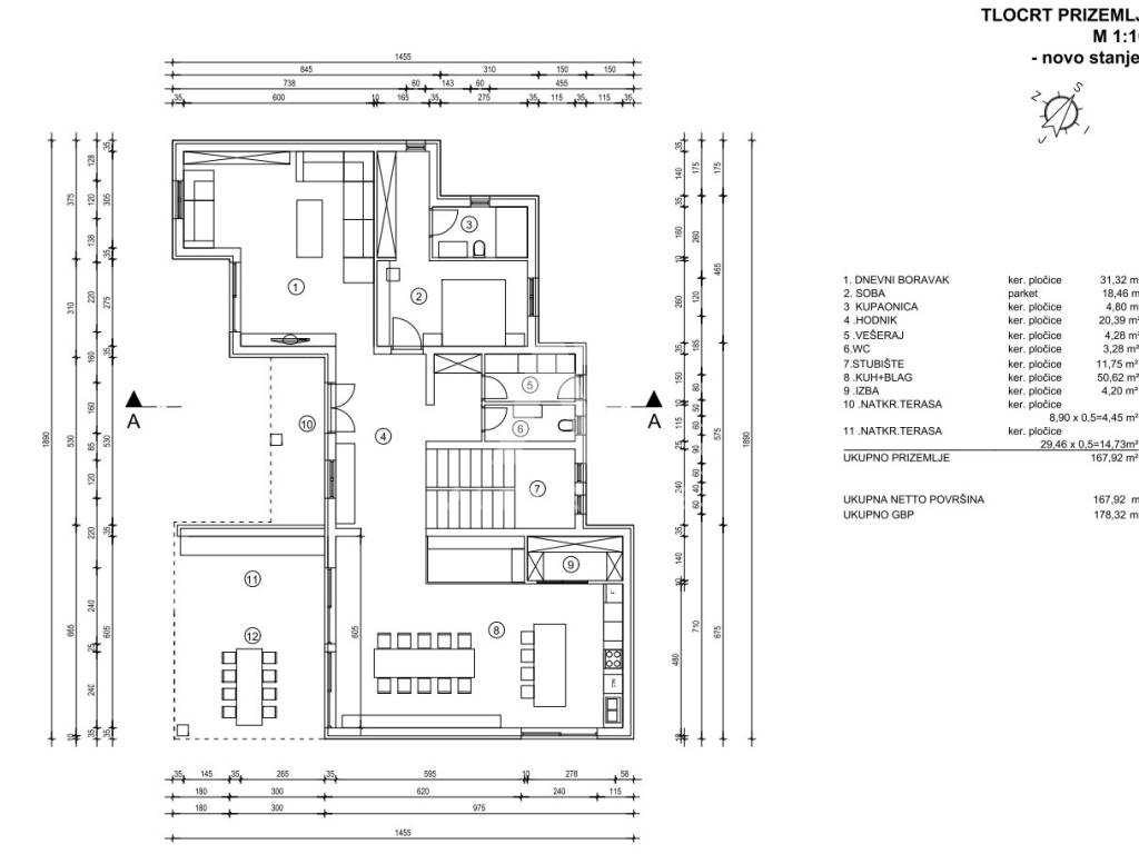
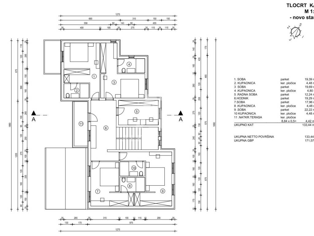
Dobrinj, surroundings, luxurious detached villa in a quiet location. The villa has an area of ​​320m2, located on a plot of over 900m2. On the ground floor there is an entrance hall, a bedroom with its own bathroom, a laundry room, a kitchen, a dining room and a living room. From the living room there is an exit to the terrace and sun deck, where there is a 32m2 swimming pool. An internal staircase leads to the first floor of the villa where there are four bedrooms, each with its own bathroom. The luxury villa is equipped with air conditioning in all rooms, high-quality ceramics, PVC joinery with aluminum shutters and mosquito nets. Additional equipment includes a heat pump for underfloor heating and hot water, water heating in the pool. The villa is equipped with an alarm system and video surveillance. It is located near all necessary facilities.

The buyer does not pay real estate sales tax.

Expected completion of works 04/2023.

Documentation in order!

ID CODE: 369

Jelena Andrić
Mob: +385 99 3993 088
Tel: +385 51 678 696
E-mail: info@alfaelmas.com
www.alfaelmas.com
Характеристики
Типология
Отдельный дом на одну семью
Договор
Продажа
Этажность здания
1
Лифт
Нет
Площадь
320 m²
Помещения
5+
Спальни
5
Ванные
3+
Балкон
Нет
Терраса
Да
Гараж, машиноместа
3 в общая парковка/гараж
Отопление
Автономное, воздушное
Кондиционер
Автономное, холод/тепло
Информация о ценах
Цена
€ 1 150 000
Цена за м²
3 594 €/m²
Энергоэффективность
  • Отопление

    Автономное, воздушное
  • Кондиционер

    Автономное, холод/тепло
  • Энергетическая сертификация

    Не классифицирована
Откройте для себя каждый уголок объекта недвижимости
+39
Доп. опции

Свяжитесь с рекламодателем

Или