1/12


Отдельный дом на одну семью Motovun, Motovun
€ 140 000
Объявление обновлено 30.01.2026
Описание
ID: 2731
ID CODE: 2731
Molo Longo nekretnine
Mob: +385 51 858 544
Tel: +385 51 858 544
E-mail: info@mololongorealestate.com
www.mololongorealestate.com
Характеристики
- Типология
- Отдельный дом на одну семью
- Договор
- Продажа
- Этажность здания
- 1
- Лифт
- Нет
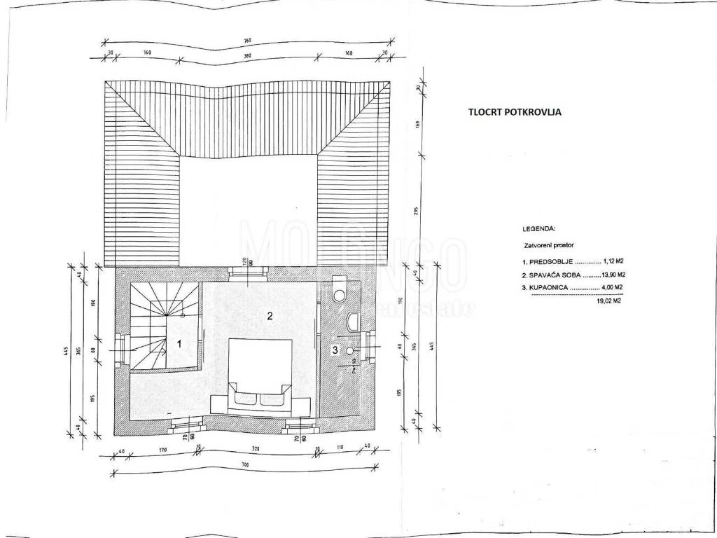
- Площадь
- 70 m²
- Помещения
- 3
- Спальни
- 0
- Балкон
- Нет
- Терраса
- Нет
- Гараж, машиноместа
- 2 в общая парковка/гараж
Информация о ценах
- Цена
- € 140 000
- Цена за м²
- 2 000 €/m²
Откройте для себя каждый уголок объекта недвижимости
Доп. опции