Офис - Студия Продажа

€ 250 000
4
100 m²
1

Пометка

Объявление обновлено 30.01.2026
Описание

ID: 5491

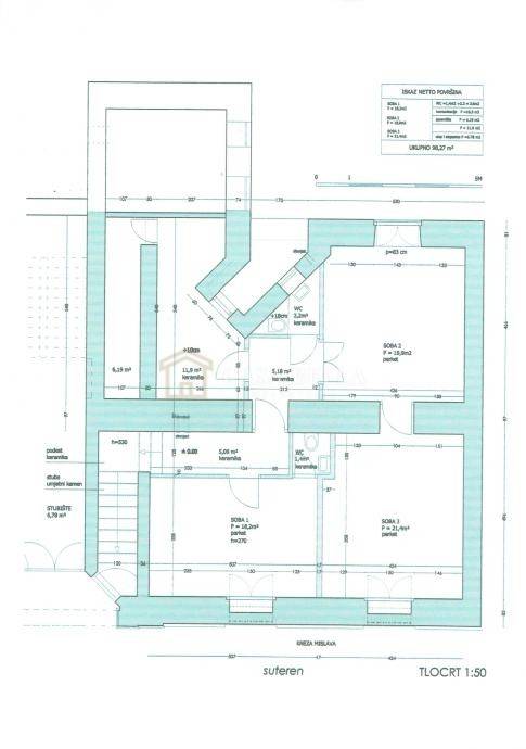
CASA BELLA iz ponude izdvaja poslovni prostor veličine 100 m2 na Medveščaku. Prvotno je bio trosobni stan koji je izuzetno temeljito i kvalitetno u potpunosti obnovljen i prenamijenjen u poslovni prostor a od strane najmoprimaca (koji su trenutno u najmu) dodatno uređen i pretvoren u vrhunski tonski studio. Nalazi se u visokom suterenu zgrade i sastoji se od 4 prostorije. Fotografije na početku predstavljaju trenutni izgled prostora (tonski studio) a drugi dio fotografija u galeriji prikazuju stari prostor dok je još bio trosobni stan prije obnove i prenamjene u poslovni prostor.

Dodatne prednosti:

-iznimno atraktivna lokacija
-bez ulaganja
-novi parketi (lakirani) i keramika
-suh, svijetao i uredan prostor
-nove instalacije (trofazna struja, voda, plin)
-visina stropa 270 cm
-klimatiziran
-direktan i poseban ulaz s ceste
-video nadzor

U prostoru se trenutno nalaze najmoprimci koji uredno i na vrijeme podmiruju sve svoje obaveze a željeli bi ostati u prostoru i dalje u slučaju prodaje što novome vlasniku daje rijetku priliku za sigurnu investiciju. Ovaj poslovni prostor zbog svoje izuzetno atraktivne lokacije i svega što nudi predstavlja rijetkost na tržištu i iznimnu priliku za investiciju.

ID CODE: 5491

CASA BELLA NEKRETNINE d.o.o.
Mob: +385 91 6368 026
E-mail: info@casabellanekretnine.hr
www.casabellanekretnine.hr
Характеристики
Договор
Продажа
Типология
Офис - Студия
Площадь
100 m²
Помещения
4 помещения, 1 ванная
Другие характеристики
  • Сигнализация
Информация о ценах
Цена
€ 250 000
Цена за м²
2 500 €/m²
Энергоэффективность

Потребление энергии

B

Откройте для себя каждый уголок объекта недвижимости
+9
Доп. опции

Свяжитесь с рекламодателем

Или