Трехкомнатная квартира Opatija - Centar, Opatija, Centar, Opatija

€ 2 800/месяц
3
139 m²
3
R
Да
Терраса

Пометка

Объявление обновлено 05.02.2026
Описание

This description has been translated automatically and may not be accurate

ID: 2811

A luxurious apartment for rent in a new building, in the very center of Opatija, only 200 meters from the sea. This wonderful apartment offers you all the benefits that life offers in one of the most attractive tourist spots on the Adriatic.

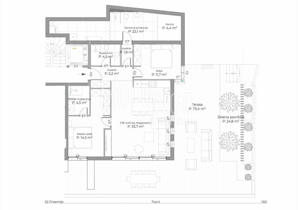
The apartment consists of a hallway, living room with kitchen and dining room, two bedrooms, three bathrooms and a storage room.
The apartment has a terrace on the ground floor with a total area of 73.4m2, and a green garden with a total area of 24.8m2.
In the basement there is a storage room and two parking spaces in the garage.
The apartment with its belongings has a total area of 210.33 m2.

Characteristics:
▪ Spacious living room with panoramic windows that offer a view of the sea and the coast.
▪ Fully equipped modern kitchen with high-quality appliances.
▪ Furnished bedrooms with custom-made wardrobes.
▪ Luxuriously decorated bathrooms with glass showers and luxurious details.

Equipment:
▪ The equipment is at a high level and is fully furnished with modern and designer furniture, top-class ceramics and parquet. The heating and cooling system is provided by spa cranes - coilover system, and underfloor heating.
▪ Garage and elevator
▪ Quiet and private location, but close to all facilities and beaches.
▪ Shared swimming pool of size 11x3m.

This exclusive residence is located in an excellent location, in close proximity to all historical sights, beaches, restaurants and the Lungomare promenade in Opatija. This combination of high-quality housing and proximity to all city amenities makes this property a perfect combination of luxury and practicality.

An excellent property worthy of attention.

For more information and viewing, contact the agent.

ID CODE: 2811

Filip Popović
Suradnik u procesu obuke
Mob: +385 91 9722 244
Tel: +385 51 858 544
E-mail: filip.popovic@mololongorealestate.com
www.mololongorealestate.com
Характеристики
Типология
Квартира
Договор
Аренда
Этаж
Бельэтаж
Этажность здания
3
Лифт
Да
Площадь
139 m²
Помещения
3
Спальни
2
Ванные
3
Балкон
Нет
Терраса
Да
Гараж, машиноместа
1 в частный гараж/парковка, 2 в общая парковка/гараж
Отопление
Автономное, воздушное
Кондиционер
Автономное, холод/тепло
Информация о ценах
Цена
€ 2 800/месяц
Цена за м²
20 €/m²
Подробности о расходах
Залог
Неуказана
Энергоэффективность
  • Год постройки

    2023
  • Отопление

    Автономное, воздушное
  • Кондиционер

    Автономное, холод/тепло
  • Энергетическая сертификация

    Не классифицирована
Планировка
Откройте для себя каждый уголок объекта недвижимости
+17
Доп. опции

Свяжитесь с рекламодателем

Или