Офис - Студия Продажа

€ 220 000
58 m²

Пометка

Объявление обновлено 30.01.2026
Описание

ID: 1040

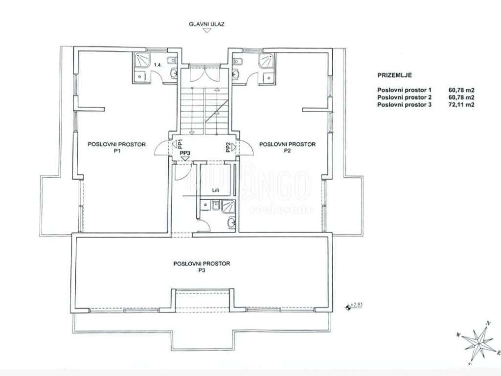
U OPISU JE PP - 1 , PRIZEMLJE
Projekt se sastoji od stambeno-poslovne zgrade u naselju Gornji Zamet koja je projektirana da zadovolji energetski razred A+ .
Zgrada je tlocrtno pravilnog oblika i ima šest katova od kojih je jedan suterenski .
Ukupno se nalazi 16 samostalnih uporabnih jedinica od kojih su tri poslovne a trinaest stambene namjene .
Stanovi su dvosobni osim suterenskih koji su jednosobni te zgrada ima lift za lakši pristup svim etažama .

Vanjska stolarija zgrade izvedena je u drvo-aluminiju s IZO dvoslojnim staklom , sustavom rolo plus komarnicima i aluminijskim roletama s elektromotorom .
Ulazna vrata u stanove su u protuprovalnoj i protupožarnoj izvedbi za dodatnu sigurnost stanara a unutarnja stolarija je medijapan sa magnetnom bravom i skrivenim spojnicama .
Na podovima stanova nalazi se hrastov parket, dok su u sanitarnim čvorovima keramičke pločice prvoklasnih talijanskih proizvođača .

Za grijanje svakog stana predviđeno je podno grijanje , mono blok i dizalica topline , dok je za hlađenje svakog stana predviđena unutarnja klimatizacijska jedinica . Ovakav sustav grijanja i hlađenja omogućava ugodnu temperaturu u svim prostorijama tijekom cijele godine , uz minimalnu potrošnju energije.

Suteren i mansarda imaju po dva stana, dok se na ostalim etažama nalaze po tri stana .
Ova raznolikost omogućava različite opcije života i prilagodbe potrebama različitih stanara .
Projektirana zgrada odgovara modernim standardima stanovanja , pružajući visoku kvalitetu života svojim stanarima .
Završetak gradnje predviđa se 2024 - te godine u ljetnim danima .

ID CODE: 1040

Molo Longo nekretnine
Mob: +385 51 858 544
Tel: +385 51 858 544
E-mail: info@mololongorealestate.com
www.mololongorealestate.com
Характеристики
Договор
Продажа
Типология
Офис - Студия
Площадь
58 m²
Этажность здания
6
Информация о ценах
Цена
€ 220 000
Цена за м²
3 793 €/m²
Энергоэффективность
  • Энергетическая сертификация

    Не классифицирована
Откройте для себя каждый уголок объекта недвижимости
+2
Доп. опции

Свяжитесь с рекламодателем

Или