Четырехкомнатная квартира новое, третий этаж, Šibenik

€ 750 000
4
138 m²
2
3
Да

Пометка

Объявление обновлено 26.03.2026
Описание

This description has been translated automatically and may not be accurate

ID: I30150

Luxury apartment in new construction, 3 rooms, 138.97 m2, Šibenik - Crnica

Apartments in new construction, in a unique location in Šibenik with a view of the old town and the St. Ante canal, are an opportunity that rarely arises on the market.

The building is constructed according to the latest standards using top-quality materials. Underfloor heating in all rooms, air conditioning systems, and an elevator ensure maximum comfort, while the option to choose finishing details such as flooring, ceramics, and sanitary ware allows for personalization according to the buyer's wishes.

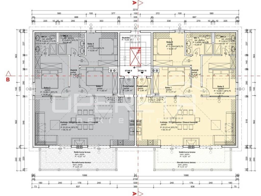
Apartment S10 is located on the top, third floor of the building with an additional gallery in the attic. It covers 138 m2 of living space, with 3 bedrooms and 2 bathrooms. The spacious living room connected to the dining area and kitchen forms the heart of the home, along with a terrace of 20 m2 offering a view of the sea, the city, and the picturesque St. Ante canal.

The apartment also includes a parking space in front of the building. It is less than 200 m from the well-maintained Banj beach, and the historic core of Šibenik and all city center amenities are within a few minutes' walk.

The perfect combination of proximity to natural beauty and urban life makes this property an ideal choice for those seeking top comfort and a unique location.

View the virtual tour of the apartment at the following link: https://opereta-d-o-o.vr-360-tour.com/e/AsgBlOBdYRQ/e?accessibility=false&hidehotspotlabels=true&hidelive=true&hidetitle=true
Характеристики
Типология
Квартира
Договор
Продажа
Этаж
3 этаж
Лифт
Да
Площадь
138 m²
Помещения
4
Спальни
3
Ванные
2
Меблировано
Нет
Гараж, машиноместа
1 в общая парковка/гараж
Отопление
Автономное, блок питания
Кондиционер
Холод/тепло
Информация о ценах
Цена
€ 750 000
Цена за м²
5 435 €/m²
Энергоэффективность
  • Год постройки

    2024
  • Состояние

    Новое / На стадии строительства
  • Отопление

    Автономное, блок питания
  • Кондиционер

    Холод/тепло
Откройте для себя каждый уголок объекта недвижимости
+18
Доп. опции

Свяжитесь с рекламодателем

Или