Четырехкомнатная квартира новое, первый этаж, Varaždin

€ 306 525
4
100 m²
1
1
Нет

Пометка

Объявление обновлено 26.03.2026
Описание

ID: I34473

U mirnom dijelu Varaždina gradi se manji projekt s dvije moderne zgrade i ukupno samo 8 stanova. Riječ je o kvalitetnoj novogradnji s naglaskom na komfor, energetsku učinkovitost i dugoročno ugodan životni prostor.

Trenutno je u tijeku pretprodaja, što znači povoljniju cijenu po kvadratu i mogućnost prilagodbe rasporeda te izbora završnih materijala u ranoj fazi gradnje. Kako projekt bude napredovao, cijena će se povećavati.

Grijanje i hlađenje riješeni su dizalicom topline i podnim grijanjem, a stanovi imaju troslojnu stolariju, klizne stijene, protuprovalna vrata i kvalitetnu sanitariju. Zgrada je ograđena, s video portafonom.

Ukupno je osigurano 6 parkirnih mjesta. Uz svaki stan obavezna je kupnja minimalno 1 parkirnog mjesta, uz mogućnost dodatnog.

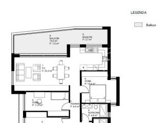
Kvadratura stana: 100,50 m2
Kvadratura balkona: 21,4 m2
Broj spavaćih soba: 3
Broj kupaonica: 2

Broj stanova je ograničen.
Iskoristite pretprodajnu cijenu od 3.050 /m i rezervirajte na vrijeme.
Характеристики
Типология
Квартира
Договор
Продажа
Этаж
1 этаж
Лифт
Нет
Площадь
100 m²
Помещения
4
Спальни
3
Ванные
1
Меблировано
Нет
Гараж, машиноместа
1 в общая парковка/гараж
Отопление
Централизованное
Кондиционер
Холод/тепло
Информация о ценах
Цена
€ 306 525
Цена за м²
3 065 €/m²
Энергоэффективность
  • Состояние

    Новое / На стадии строительства
  • Отопление

    Централизованное
  • Кондиционер

    Холод/тепло
  • Энергетическая сертификация

    Не подлежащий
Откройте для себя каждый уголок объекта недвижимости
+12
Доп. опции

Свяжитесь с рекламодателем

Или