map icon

Отдельный дом на одну семью 130 m², новая, Velika Gorica

Velika Gorica
€ 336 200
4
130 m²
2
Нет

Пометка

Объявление обновлено 09.02.2026
Описание

ID: I33343

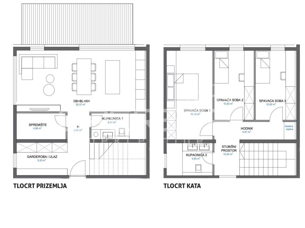
VELIKA GORICA OKOLICA, KUČE, KUĆA U NIZU. OBJEKT OZNAKE "A"
Prodaje se kuća u nizu koja se sastoji od prizemlja, kata, vrta i dva parkirna mjesta.
Kuću odlikuju kvaliteta i mali troškovi!
Montažni objekt!

Grijanje podno putem toplinske pumpe
3 spavaće sobe
2 kupaone
spremište



Očekivani završetak radova početak 2026 godine
Характеристики
Типология
Отдельный дом на одну семью
Договор
Продажа
Этаж
1
Лифт
Нет
Площадь
130 m² | коммерческая 290 m²
Помещения
4
Спальни
3
Ванные
2
Меблировано
Нет
Гараж, машиноместа
1 в общая парковка/гараж
Отопление
Автономное, блок питания
Кондиционер
Холод/тепло
Деталь поверхности

Жилой фонд

Этаж
1
Площадь
130,0 m²
Коэффициент
100%
Тип площади
Основная
Коммерческая площадь
130,0 m²

Участок

Этаж
Нулевой этаж
Площадь
160,0 m²
Коэффициент
100%
Тип площади
Дополнительная
Коммерческая площадь
160,0 m²
Информация о ценах
Цена
€ 336 200
Цена за м²
1 159 €/m²
Энергоэффективность
  • Год постройки

    2025
  • Состояние

    Новое / На стадии строительства
  • Отопление

    Автономное, блок питания
  • Кондиционер

    Холод/тепло
Откройте для себя каждый уголок объекта недвижимости
+7
Доп. опции

Свяжитесь с рекламодателем

Или