Отдельный дом на одну семью 500 m², Sesvete sjever, Загреб

€ 260 000
500 m²

Пометка

Объявление обновлено 28.04.2026
Описание

This description has been translated automatically and may not be accurate

ID: 8597

EXCLUSIVE INVESTMENT OPPORTUNITY – Vugrovec 16 km from the center of Zagreb

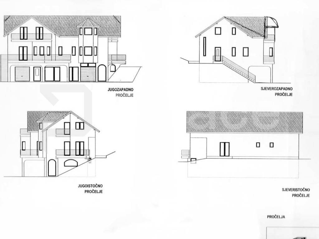
Former retirement home project in shell condition with tremendous potential!

Location: Beautiful place surrounded by greenery, only 16 km from the center of Zagreb. Ideal for those seeking peace and nature, yet close to the city. The view is calming, full of greenery and fresh air – perfect for relaxation and a healthy lifestyle!

Property description:

This property was originally designed as a modern and functional residence for senior citizens (retirement home), but construction was stopped in the shell condition. It is now being sold in that state, giving you the flexibility to adapt it to your needs – whether you continue with the original plan, turn it into a luxury villa, apartment complex, hotel or something entirely different!

Key features:

Net floor area: Approx. 500 m²

Number of rooms: 21 spacious rooms/spaces, ideal for various purposes

Bathrooms: 12 planned bathrooms

Land: Generous 2400 m² – plenty of space for additional buildings, gardens, parking or expansions

Condition: Shell condition – basic structure is completed, ready for finishing work according to your vision

This property offers huge potential for investors, developers, or those dreaming of a personalized project in an idyllic environment. The proximity to Zagreb ensures good connectivity, while the green surroundings guarantee peace and quality of life.





Если вы хотите узнать больше, вы можете поговорить с Mario Šušak.
Характеристики
Типология
Отдельный дом на одну семью
Договор
Продажа
Площадь
500 m²
Информация о ценах
Цена
€ 260 000
Цена за м²
520 €/m²
Откройте для себя каждый уголок объекта недвижимости
+12
Доп. опции

Свяжитесь с рекламодателем

Или