Двухкомнатная квартира новое, Vrh i Zapad, Krk

€ 460 000
2
121 m²
1

Пометка

Объявление обновлено 30.04.2026
Описание

This description has been translated automatically and may not be accurate

ID: s2276

Air conditioning, Building permit, City sewage, City water supply system, Close to center, Condominium conversion carried out, High-quality construction, Large terrace, Near the sea, New building, Paved access road, Project documentation, PVC joinery, Several parking spaces, Title deed.

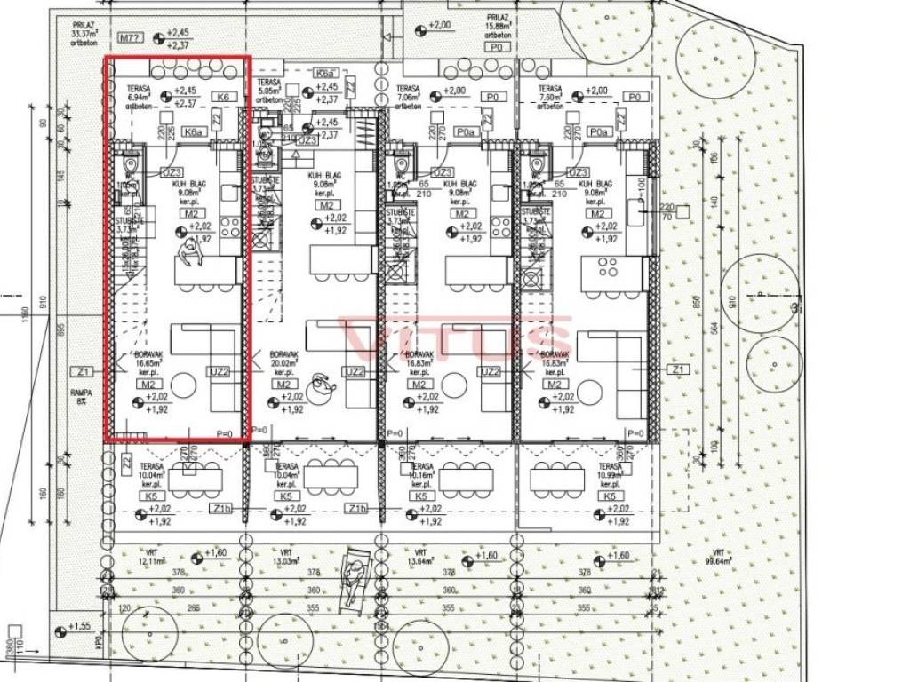
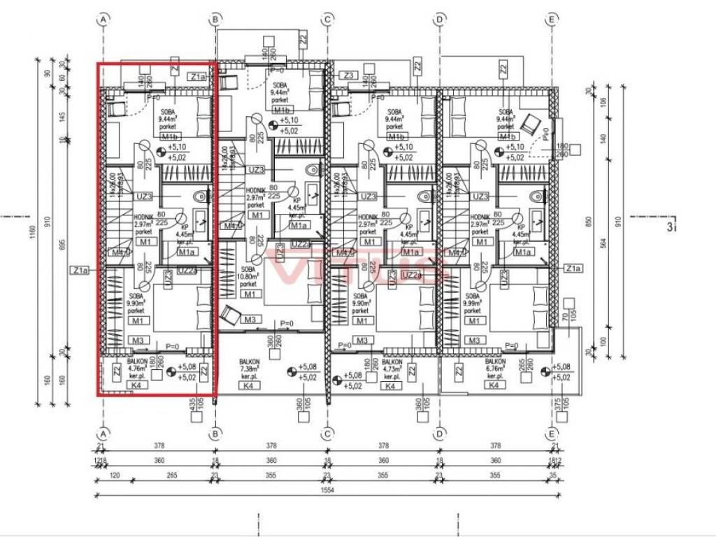
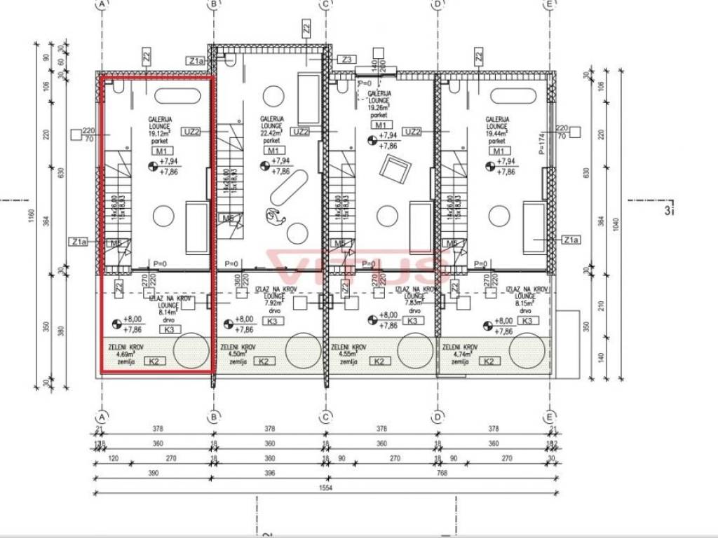
Island of Krk, town of Krk! For sale is a duplex apartment in a new building in the town of Krk, 350 m from the center and the sea! The apartment consists of a ground floor, first floor and gallery, with a total size of 121 m2. On the ground floor there is a kitchen with a dining room and living room, a toilet and a covered terrace. On the first floor there are two bedrooms, a bathroom and a covered balcony, and a 20 m2 gallery with access to the roof terrace. The apartment also has a garden of 12 m2 and two parking spaces. Modern design, quality construction and equipment and an excellent location offer the future buyer a carefree vacation near all necessary amenities! The property is currently under construction, completion of works is planned for 06/2026.
Характеристики
Типология
Квартира
Договор
Продажа
Площадь
121 m²
Помещения
2
Спальни
2
Ванные
1
Меблировано
Нет
Гараж, машиноместа
2 в общая парковка/гараж
Кондиционер
Холод/тепло
Информация о ценах
Цена
€ 460 000
Цена за м²
3 802 €/m²
Энергоэффективность
  • Год постройки

    2025
  • Состояние

    Новое / На стадии строительства
  • Кондиционер

    Холод/тепло
  • Энергетическая сертификация

    Не подлежащий
Откройте для себя каждый уголок объекта недвижимости
+11
Доп. опции

Свяжитесь с рекламодателем

Или