Отдельный дом на одну семью 485 m², новая, Ugljan, Preko

€ 2 840 000
5+
485 m²
3+
Нет
Балкон
Погреб

Пометка

Объявление обновлено 30.04.2026
Описание

This description has been translated automatically and may not be accurate

ID: H696

Villa with Rooftop Pool and Sea View Ugljan Island

Located in the prestigious area of Ugljan on Ugljan Island, this modern villa features panoramic sea views and a unique rooftop pool on the same level as the living and dining area. Just 100 m from the sea and 2 km from the town center, it is part of a 5-star resort with access to sports courts, two shared pools and premium services.
The total gross area is 484,60 m2, including a 49,00 m2 heated and cooled pool. The villa sits on a spacious 1.140 m2 plot and offers two covered outdoor spaces plus a garage for two vehicles.
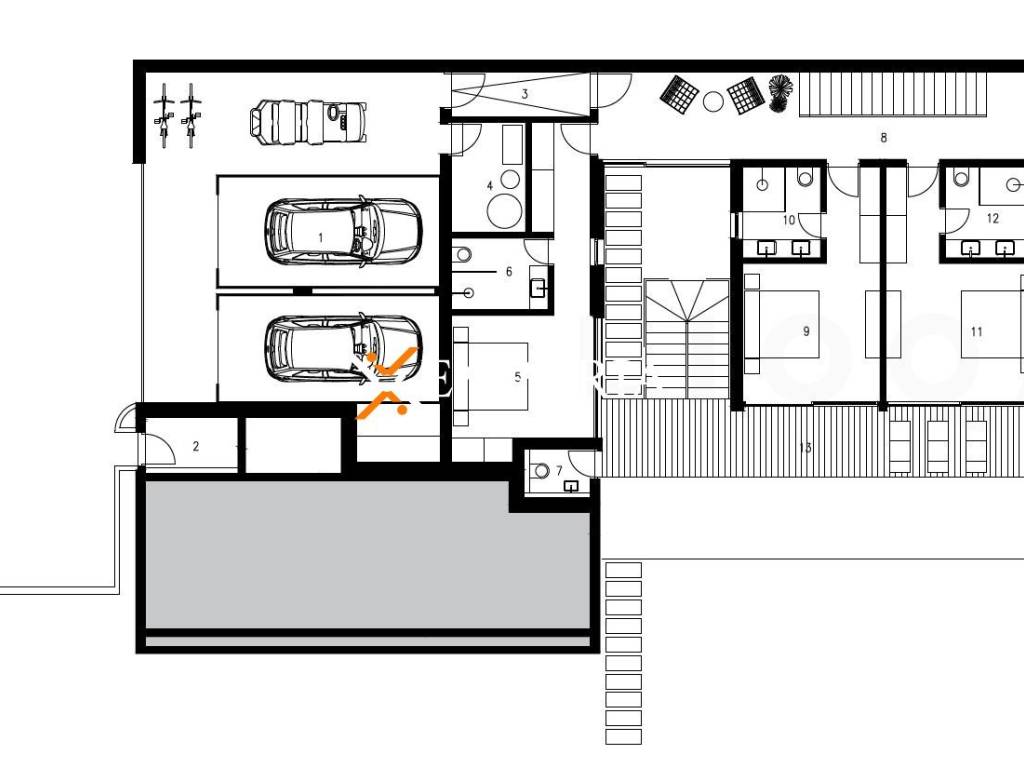
Layout
The ground floor (209,80 m2 gross) includes an entrance, guest toilet, three bedrooms – each with en-suite bathroom and walk-in wardrobe – a laundry room, pool machine room, two-car garage and a partly covered terrace.
The first floor (225,70 m2 gross) features a hallway, storage, guest toilet, two bedrooms with private bathrooms and wardrobes, and an open-plan kitchen, dining and living area. The living space opens onto a partly covered terrace with a private pool and sea view.

Equipment

The villa is fully furnished with premium furniture and top-quality appliances. All rooms are equipped with ceiling-mounted air conditioning, and bathrooms feature underfloor heating via a heat pump. The first-floor pool includes hydromassage jets, heating, cooling and an outdoor shower.
Nineteen built-in speakers provide immersive audio throughout the home. The garden includes automatic irrigation, and the roof is equipped with solar panels. The villa offers high-security, fire- and burglar-resistant doors, and is built with concrete walls, aluminum joinery and stone wool insulation.
No property transfer tax applies.
Energy certificate: A+
Year of construction: 2024

Location

Ugljan is the closest and best constructed island of Zadar archipelago, opposite the town of Zadar. It is connected to number of ferry and catamaran lines. The ride takes only 20 minutes. On the island there are restaurants, shops, schools, marina, pharmacy, ambulance, etc., so even though you are on the island you have everything with the priceless beauty and charm of the island.

Additional info

If you have found this property elsewhere advertised at a lower price, that same price is valid with us!

Характеристики
Типология
Отдельный дом на одну семью
Договор
Продажа
Этаж
1
Этажность здания
2
Лифт
Нет
Площадь
485 m² | коммерческая 1 625 m²
Помещения
5+
Спальни
5
Ванные
3+
Меблировано
Нет
Балкон
Да
Гараж, машиноместа
1 в общая парковка/гараж
Кондиционер
Холод/тепло
Другие характеристики
  • Бассейн
  • Железная дверь
Деталь поверхности

Жилой фонд

Этаж
1
Площадь
485,0 m²
Коэффициент
100%
Тип площади
Основная
Коммерческая площадь
485,0 m²

Участок

Этаж
Нулевой этаж
Площадь
1 140,0 m²
Коэффициент
100%
Тип площади
Дополнительная
Коммерческая площадь
1 140,0 m²
Информация о ценах
Цена
€ 2 840 000
Цена за м²
1 748 €/m²
Энергоэффективность

Потребление энергии

A+

Откройте для себя каждый уголок объекта недвижимости
+22
Доп. опции

Свяжитесь с рекламодателем

Или