Двухкомнатная квартира новое, первый этаж, Luka, Пореч

€ 217 000
2
61 m²
2
1
Да

Пометка

Объявление обновлено 25.03.2026
Описание

This description has been translated automatically and may not be accurate

ID: 2197

Istria, Poreč surroundings

In the surroundings of Poreč, just 3 km from the sea, the construction of a modern residential building with an elevator will start in November 2025.
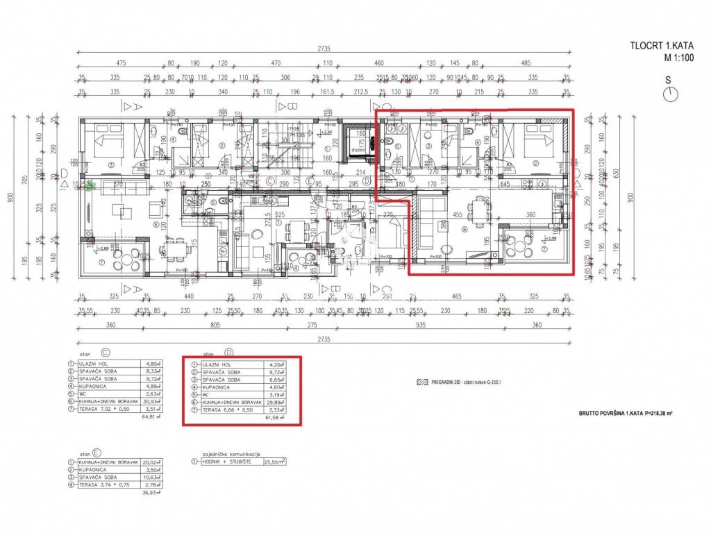
For sale is an apartment located on the 1st floor, with a net area of 61.58 m, consisting of an entrance hall, guest toilet, two bedrooms, a bathroom, and an open-space living room with kitchen and dining area, with access to a covered terrace ideal for relaxation and enjoyment.

Heating and cooling are provided by air conditioning, and the apartment includes two parking spaces in front of the building.

Completion of all works is expected by May 1st, 2027.
An excellent location, modern design, and a reliable investor make this property an outstanding choice whether for living or as an investment.

Viewing the property is possible with a signed mediation agreement, which is the basis for further action in connection with the sale and commission in accordance with the Act on mediation in real estate transactions. In the case of sales, the agency commission amounts to 3% + VAT and is charged when concluding the pre-contract/sales contract.
Если вы хотите узнать больше, вы можете поговорить с Ivica Barić.
Характеристики
Типология
Квартира
Договор
Продажа
Этаж
1 этаж
Лифт
Да
Площадь
61 m²
Помещения
2
Спальни
2
Ванные
2
Меблировано
Нет
Гараж, машиноместа
1 в общая парковка/гараж
Отопление
Автономное, блок питания
Кондиционер
Холод/тепло
Информация о ценах
Цена
€ 217 000
Цена за м²
3 557 €/m²
Энергоэффективность
  • Год постройки

    2027
  • Состояние

    Новое / На стадии строительства
  • Отопление

    Автономное, блок питания
  • Кондиционер

    Холод/тепло
Откройте для себя каждый уголок объекта недвижимости
+4
Доп. опции

Свяжитесь с рекламодателем

Или