Трехкомнатная квартира новое, второй этаж, Centar - Gulići, Пореч

€ 300 350
3
85 m²
1
2
Погреб

Пометка

Объявление обновлено 09.02.2026
Описание

This description has been translated automatically and may not be accurate

ID: 2230_0125

Istria, Poreč area

A modern apartment for sale located on the 2nd floor of a new residential building with an elevator, just 1 km from the sea, in a well-organized town offering all amenities necessary for a comfortable and high-quality lifestyle.

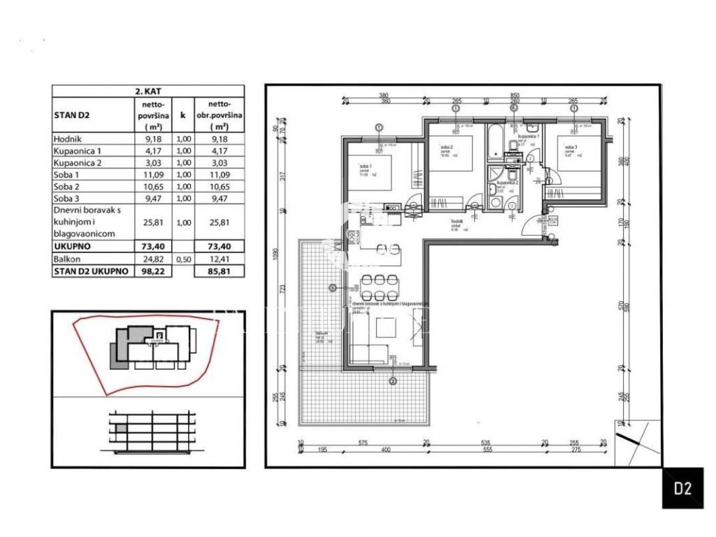
The apartment has a total net area of 85.81 m and consists of an entrance hall, three bedrooms, two bathrooms, a kitchen with dining area, and a living room with access to a spacious terrace, providing additional comfort and living quality.

Heating and cooling are provided by air conditioning units, while electric underfloor heating is installed in the living room, dining area, kitchen, and bathrooms.

The apartment includes a storage room and one parking space.

This property is ideal for solving housing needs or as a long-term investment.

Viewing the property is possible with a signed mediation agreement, which is the basis for further action in connection with the sale and commission in accordance with the Act on mediation in real estate transactions. In the case of sales, the agency commission amounts to 3% + VAT and is charged when concluding the pre-contract/sales contract.
Если вы хотите узнать больше, вы можете поговорить с Ivica Barić.
Характеристики
Типология
Квартира
Договор
Продажа
Этаж
2 этаж
Площадь
85 m²
Помещения
3
Спальни
3
Ванные
1
Меблировано
Нет
Гараж, машиноместа
1 в общая парковка/гараж
Отопление
Автономное, напольное, блок питания
Кондиционер
Холод/тепло
Информация о ценах
Цена
€ 300 350
Цена за м²
3 534 €/m²
Энергоэффективность
  • Год постройки

    2025
  • Состояние

    Новое / На стадии строительства
  • Отопление

    Автономное, напольное, блок питания
  • Кондиционер

    Холод/тепло
Откройте для себя каждый уголок объекта недвижимости
+3
Доп. опции

Свяжитесь с рекламодателем

Или