Трехкомнатная квартира новое, первый этаж, Nin

€ 199 000
3
53 m²
1
1
Да

Пометка

Объявление обновлено 10.02.2026
Описание

ID: 379-1

Projekt novogradnje na odličnoj lokaciji udaljenoj svega 100 metara od mora, sastoji se od 10 komfornih stambenih jedinica raspoređenih na 3 nadzemne etaže, te terasama na krovu zgrade. Zgrada se oprema vrhunskim materijalima, podnim grijanjem u kupaonici i dizalom. Raspored stanova i prostorija, omogućuje svim stanarima maksimalnu privatnost.
Projekt odlikuje izuzetno kvalitetna novogradnja: PVC stolarija sa elektro roletama i komarnicima, klima uređaji u svim prostorijama, podno grijanje u kupaonicama, visoko kvalitetne keramičke pločice i sanitarije, protuprovalna i protupožarna ulazna vrata..
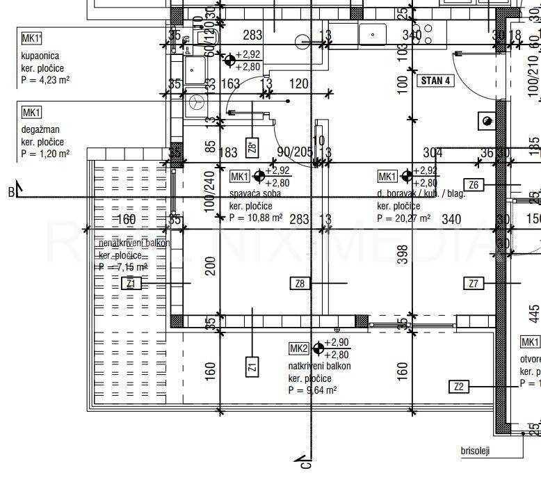
Stan oznake S4 nalazi se na prvom katu zgrade te se sastoji od kuhinje, blagovaonice i dnevnog boravaka, dvije natkrivene terase, predsoblja, kupaonice te jedne spavaće sobe. Stanu pripada jedno vanjsko parkirno mjesto.
Predviđeni rok završetka: ljeto, 2025. godine.
KUPAC NE PLAĆA POREZ NA PROMET NEKRETNINAMA!
Если вы хотите узнать больше, вы можете поговорить с Ivana Zanki Kršlović.
Характеристики
Типология
Квартира
Договор
Продажа
Этаж
1 этаж
Лифт
Да
Площадь
53 m²
Помещения
3
Спальни
1
Ванные
1
Меблировано
Нет
Отопление
Централизованное, напольное
Кондиционер
Централизованное, холод/тепло
Другие характеристики
  • Железная дверь
Информация о ценах
Цена
€ 199 000
Цена за м²
3 755 €/m²
Энергоэффективность
  • Год постройки

    2024
  • Состояние

    Новое / На стадии строительства
  • Отопление

    Централизованное, напольное
  • Кондиционер

    Централизованное, холод/тепло
Откройте для себя каждый уголок объекта недвижимости
+10
Доп. опции

Свяжитесь с рекламодателем

Или