Трехкомнатная квартира Pakoštane, Pakoštane

€ 320 608
3
91 m²
2
1
Нет

Пометка

Объявление обновлено 08.04.2026
Описание

This description has been translated automatically and may not be accurate

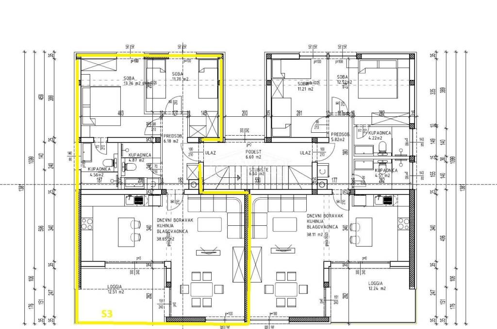
ID: 7325-S3

Pakoštane – new development, attractive location, comfortable two-bedroom apartment on the first floor.
Apartment S3 is located in a residential building with a total of 6 apartments. It features a modern design and functional layout, with a total usable area of 91.60 m².
The apartment consists of an entrance hall, two bedrooms, two bathrooms, and a spacious open-plan kitchen with dining and living area, with access to a loggia of 12.51 m². It is equipped with high-quality materials: underfloor heating, a combination of ceramic tiles and parquet flooring throughout the apartment, triple-glazed windows, and electrically operated shutters. Air conditioning units are installed in the living room and all bedrooms. The apartment includes one parking space. The expected move-in date is summer 2026. The buyer is exempt from the 3% property tax. The property is located 600 m from the beach and 650 m from the town center.

ID CODE: 7325-S3

Katarina Marasović
Mob: 00 385 98 392 954
Tel: +385 22 444 620
E-mail: catherine@domus-nekretnine.hr
http://domus-nekretnine.hr

Diana Knežević
Mob: 00 385 95 289 4518
Tel: +385 22 444 620
E-mail: knezevic@domus-nekretnine.hr
http://domus-nekretnine.hr

Martina Silov
Mob: 00385 95 587 8860
Tel: +385 22 444 620
E-mail: martina@domus-nekretnine.hr
http://domus-nekretnine.hr
Характеристики
Типология
Квартира
Договор
Продажа
Этаж
1 этаж
Лифт
Нет
Площадь
91 m²
Помещения
3
Спальни
2
Ванные
2
Балкон
Нет
Терраса
Нет
Гараж, машиноместа
1 в общая парковка/гараж
Кондиционер
Автономное, холод/тепло
Другие характеристики
  • Железная дверь
Информация о ценах
Цена
€ 320 608
Цена за м²
3 523 €/m²
Энергоэффективность
  • Год постройки

    2026
  • Кондиционер

    Автономное, холод/тепло
  • Энергетическая сертификация

    Не классифицирована
Планировка
Откройте для себя каждый уголок объекта недвижимости
+12
Доп. опции

Свяжитесь с рекламодателем

Или