Трехкомнатная квартира Pakoštane, Pakoštane

€ 309 645
3
88 m²
2
1
Нет

Пометка

Объявление обновлено 08.04.2026
Описание

This description has been translated automatically and may not be accurate

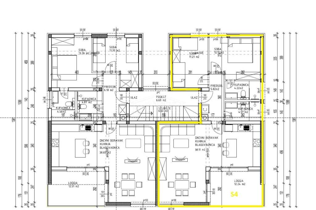
ID: 7325-S4

Pakoštane – new development, attractive location, comfortable two-bedroom apartment on the first floor.
Apartment S4 is located in a residential building with a total of 6 apartments. It features a modern design and functional layout, with a total usable area of 88.47 m².
The apartment consists of an entrance hall, two bedrooms, two bathrooms, and a spacious open-plan kitchen with dining and living area, with access to a loggia of 12.24 m². It is equipped with high-quality materials: underfloor heating, a combination of ceramic tiles and parquet flooring throughout the apartment, triple-glazed windows, and electrically operated shutters. Air conditioning units are installed in the living room and all bedrooms. The apartment includes one parking space. The apartment includes one parking space. The expected move-in date is summer 2026. The buyer is exempt from the 3% property tax.
The property is located 600 m from the beach and 650 m from the town center.

ID CODE: 7325-S4

Katarina Marasović
Mob: 00 385 98 392 954
Tel: +385 22 444 620
E-mail: catherine@domus-nekretnine.hr
http://domus-nekretnine.hr

Diana Knežević
Mob: 00 385 95 289 4518
Tel: +385 22 444 620
E-mail: knezevic@domus-nekretnine.hr
http://domus-nekretnine.hr

Martina Silov
Mob: 00385 95 587 8860
Tel: +385 22 444 620
E-mail: martina@domus-nekretnine.hr
http://domus-nekretnine.hr
Характеристики
Типология
Квартира
Договор
Продажа
Этаж
1 этаж
Лифт
Нет
Площадь
88 m²
Помещения
3
Спальни
2
Ванные
2
Балкон
Нет
Терраса
Нет
Гараж, машиноместа
1 в общая парковка/гараж
Кондиционер
Автономное, холод/тепло
Другие характеристики
  • Железная дверь
Информация о ценах
Цена
€ 309 645
Цена за м²
3 519 €/m²
Энергоэффективность
  • Год постройки

    2026
  • Кондиционер

    Автономное, холод/тепло
  • Энергетическая сертификация

    Не классифицирована
Планировка
Откройте для себя каждый уголок объекта недвижимости
+11
Доп. опции

Свяжитесь с рекламодателем

Или