map icon

Квартира Klovićeva, Dotrščina, Загреб

ЗагребDotrščinaKlovićeva
€ 350 000
85 m²

Пометка

Объявление обновлено 02.05.2026
Описание

ID: EK-2659755

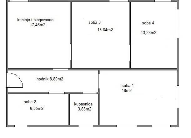
Stan: Zagreb, Maksimir, Klovićeva, 4-sob, 85m2, suteren, 350000 €
Stan se nalazi u zgradi iz 1943. god. sa ukupno 5 stanova koja je okružena vrtom i zelenilom.
Vrt ima 1000 m2 i u suvlasništvu je stanara zgrade.
Stan se proteže preko cijele desne etaže suterena pa je trostrane orijentacije na istok, zapad i sjever.
Sastoji se od hodnika, kuhinje sa blagovaonicom, 4 sobe i kupaone sa tušem i wc-om.
Grijanje centralno na struju. Drvena stolarija.
Stan je potrebno urediti.
Vlasništvo uredno, 1/1, tereta nema. Mogućnost kupnje na kredit.
Parking niz ulicu, II zona.
Zona tramvaja - 1 min pješice do stajališta.
Blizina škole, vrtića, nekoliko fakulteta, parka Maksimir, stadiona, mnoštvo trgovina i dr.
Izvrsna lokacija, blizina svih sadržaja a mir, tišina i zelenilo.
Характеристики
Типология
Квартира
Договор
Продажа
Площадь
85 m²
Информация о ценах
Цена
€ 350 000
Цена за м²
4 118 €/m²
Энергоэффективность
  • Год постройки

    1943
  • Энергетическая сертификация

    Не подлежащий
Откройте для себя каждый уголок объекта недвижимости
+8
Доп. опции

Свяжитесь с рекламодателем

Или