Четырехкомнатная квартира новое, второй этаж, Industrijska četvrt, Retfala, Josipovac, Osijek

€ 239 598
4
86 m²
1
2
Нет

Пометка

Объявление обновлено 18.02.2026
Описание

ID: I34797

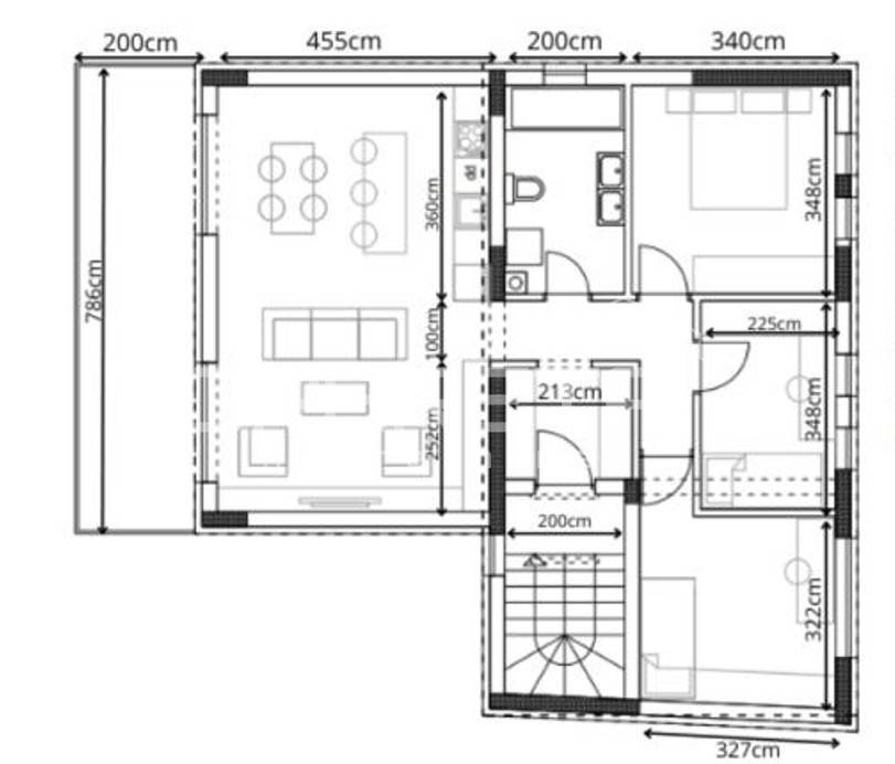
PRODAJA, STAN, OSIJEK, BOSUTSKO NASELJE, Miljacka, 86,08m2, 4-soban
Na traženoj lokaciji u novogradnji je smješten stan na 2. katu površine 78,69m2 s balkonom površine 15,72 (netto 3,93m2) te vanjskim parkirnim mjestom netto 3,46m2.
Početak gradnje očekivan je u lipnju 2026. godine dok je završetak planiran za prosinac 2027. godine.
Karakteristike:
Podno grijanje (plinsko)
Fasada 12cm (stiropor)
2 klime
3-slojna PVC stolarija (antracit - bijela)
Protuprovalna vrata

Izgradnja kvalitetnim materijalima!

Blizina svih sadržaja potrebnijih za život (javni prijevoz, škole, vrtić, trgovine...)
Характеристики
Типология
Квартира
Договор
Продажа
Этаж
2 этаж
Лифт
Нет
Площадь
86 m²
Помещения
4
Спальни
3
Ванные
1
Меблировано
Нет
Гараж, машиноместа
1 в общая парковка/гараж
Отопление
Централизованное, на газу
Кондиционер
Холод/тепло
Информация о ценах
Цена
€ 239 598
Цена за м²
2 786 €/m²
Энергоэффективность
  • Год постройки

    2027
  • Состояние

    Новое / На стадии строительства
  • Отопление

    Централизованное, на газу
  • Кондиционер

    Холод/тепло
Откройте для себя каждый уголок объекта недвижимости
+4
Доп. опции

Свяжитесь с рекламодателем

Или