map icon

Трехкомнатная квартира новое, Split

Split
€ 507 000
3
127 m²
2

Пометка

Объявление обновлено 19.02.2026
Описание

This description has been translated automatically and may not be accurate

ID: 2052/62h

Пентхаус с тремя спальнями и джакузи

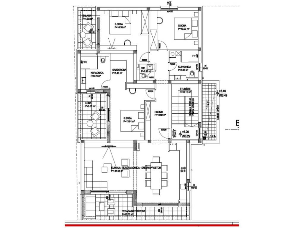
Продается современная квартира-пентхаус площадью 126,88 м, расположенная на первом этаже качественного нового дома в тихом поселке Тугаре, недалеко от Сплита, Строжанаца и Омиша.



Квартира состоит из кухни со столовой и кладовой, трех спален, двух ванных комнат, гардеробной и просторной открытой площадки, включающей террасу и два балкона. В ванных комнатах установлены подогрев пола, встроенные сливные бачки Geberit и душевые кабины. Квартира ориентирована на юго-запад, что обеспечивает обилие естественного света в течение всего дня. Расположение очень практичное тихое и окруженное природой место, и в то же время в непосредственной близости от моря, города и всех важных удобств.



В стоимость квартиры входит один кондиционер мощностью 5,5 кВт и подготовленные места для установки дополнительного блока в спальне. Клиенты могут выбрать керамику и паркет по своему вкусу стоимостью до 25 евро/м с возможностью доплаты за более дорогие материалы.



Здание возводится в соответствии с высокими стандартами строительства с упором на энергоэффективность. Фасад утеплен каменной ватой толщиной 10 см, крыша утеплителем толщиной 20 см, полы стяжкой толщиной 810 см и звукоизоляцией. Установлены качественные противовзломные входные двери со звукоизоляцией и межкомнатные двери высшего класса. Перегородки возводятся с использованием системы Porotherm или Knauf в зависимости от расположения в квартире.



Хотя в здании нет лифта, у каждой квартиры есть два частных парковочных места, которые включены в стоимость. Въезд во двор и на парковку осуществляется по пандусу с дистанционным управлением. Объект дополнительно охраняется видеонаблюдением и сигнализацией. В настоящее время используется биоотстойник, но подключение к общественной канализационной системе запланировано на сентябрь 2025 года.



Начало строительства запланировано на 15 октября 2025 года, а заселение ожидается в конце 2026 года.



Способ оплаты:

40% при подписании договора

40% по завершении фазы ROH-BAU

20% по завершении работ и сдаче объекта



Этот объект недвижимости идеально подойдет тем, кто ищет покой, комфорт и качественную жизнь недалеко от моря и города, а также уединенность, которую обеспечивает небольшое жилое здание.

Характеристики
Типология
Квартира
Договор
Продажа
Площадь
127 m²
Помещения
3
Ванные
2
Информация о ценах
Цена
€ 507 000
Цена за м²
3 992 €/m²
Энергоэффективность
  • Состояние

    Новое / На стадии строительства
  • Энергетическая сертификация

    Не подлежащий
Откройте для себя каждый уголок объекта недвижимости
+12
Доп. опции

Свяжитесь с рекламодателем

Или