Трехкомнатная квартира новое, второй этаж, Povljana

€ 280 670
3
80 m²
1
2
Терраса

Пометка

Объявление обновлено 20.02.2026
Описание

This description has been translated automatically and may not be accurate

ID: DA100062835

Povljana, Pag Apartment with Sea View and Sunsets

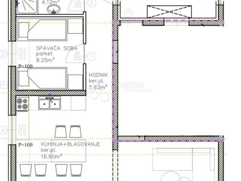
For sale is an apartment in Povljana on the spectacular island of Pag. Upon entering the apartment, you arrive in a hallway to the right is a bedroom, straight ahead is the bathroom, and to the left of the bathroom is another bedroom. Leaving the hallway, you enter a room that combines the kitchen and dining area and also has access to a terrace with a gross area of 8.45 m. Right next to the kitchen and dining area, in a separate room, is the living room which also has its own terrace of 8.73 m. Both terraces offer a sea view, and since the building faces southwest and is located in a bay just 50 meters from the sea, the apartment also boasts magnificent sunset views.

The apartment includes two air conditioners one in the kitchen and one in the living room. The windows are aluminum with electric shutters and mosquito nets, while the entrance door is both burglar- and fire-resistant. Both bedrooms have parquet flooring, while the rest of the apartment is tiled with ceramic. The 8 cm styrofoam insulation ensures easy temperature maintenance throughout the year. The building's staircase is open, so when you leave the apartment, you're greeted by fresh sea air. One parking space is included. The apartment is finished and ready to move in.

Povljana is a small settlement on the spectacular island of Pag. Povljana itself has many sandy and pebble beaches and all the amenities needed for daily life, such as shops, pharmacies, restaurants, playgrounds, etc. The island of Pag offers numerous attractions its known for, like cheese, lace, salt, and lamb, as well as many hidden beaches and coves where you can enjoy near-total privacy. And if peaceful living isnt your thing, the world-famous Zrće Beach is only about 15 minutes away by car.

Contact us with trust,

Vlatko Šaran
+385 98 429 832

ID CODE: DA100062835

Vlatko Šaran
Agent s licencom
Mob: 098/429-832
Tel: 023/551-400
E-mail: vlatko.saran@dogma-nekretnine.com
www.dogma-nekretnine.com
Если вы хотите узнать больше, вы можете поговорить с Vlatko Šaran .
Характеристики
Типология
Квартира
Договор
Продажа
Этаж
2 этаж
Площадь
80 m²
Помещения
3
Спальни
2
Ванные
1
Балкон
Нет
Терраса
Да
Информация о ценах
Цена
€ 280 670
Цена за м²
3 508 €/m²
Энергоэффективность
  • Год постройки

    2024
  • Состояние

    Новое / На стадии строительства
  • Энергетическая сертификация

    Не подлежащий
Откройте для себя каждый уголок объекта недвижимости
+15
Доп. опции

Свяжитесь с рекламодателем

Или