Трехкомнатная квартира новое, нулевой этаж, Šibenik

€ 230 300
3
66 m²
1
T

Пометка

Объявление обновлено 21.02.2026
Описание

ID: 656-1

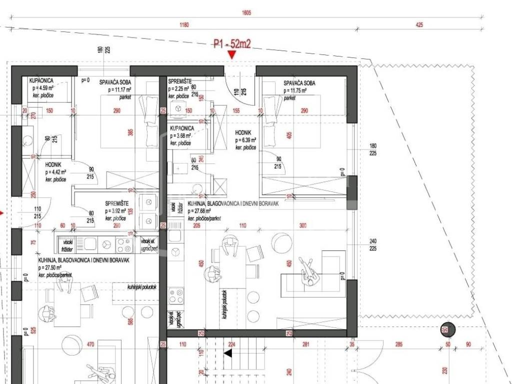
Apartman u prizemlju s vrtom Žaborić | Parkirno mjesto uključeno
Prodaje se apartman u prizemlju u Žaboriću, s prostranim privatnim vrtom površine 114 m, idealnim za boravak na otvorenom, druženja i uređenje vlastite zelene oaze.
Apartman se sastoji od:

jedne spavaće sobe

ulaznog prostora

spremišta

kupaonice

kuhinje, blagovaonice i dnevnog boravka u open-space konceptu

Uz apartman dolazi jedno parkirno mjesto, uključeno u cijenu.
Nekretnina se nalazi ispod magistrale, svega 300 m od mora i plaže, uz brzu i jednostavnu prometnu povezanost. Idealna je za stanovanje, odmor ili turistički najam.
Više informacija i dogovor oko obilaska: 091 603 6561

Ground Floor Apartment with Garden Žaborić | Parking Included
For sale is a ground floor apartment in Žaborić with a spacious private garden of 114 m, perfect for outdoor living, entertaining, and creating your own Mediterranean retreat.
The apartment consists of:

one bedroom

entrance area

storage room

bathroom

open-plan kitchen, dining area, and living room

A private parking space is included in the price.
The property is located below the main road, only 300 meters from the sea and the beach, with excellent transport connectivity. Suitable for permanent residence, holiday use, or tourist rental investment.
For more information and to arrange a viewing: +385 91 603 6561
Если вы хотите узнать больше, вы можете поговорить с Ivana Klasan.
Характеристики
Типология
Квартира
Договор
Продажа
Этаж
Нулевой этаж
Площадь
66 m²
Помещения
3
Спальни
1
Ванные
1
Кондиционер
Централизованное, холод/тепло
Другие характеристики
  • Видеодомофон
  • Железная дверь
Информация о ценах
Цена
€ 230 300
Цена за м²
3 489 €/m²
Энергоэффективность
  • Год постройки

    2026
  • Состояние

    Новое / На стадии строительства
  • Кондиционер

    Централизованное, холод/тепло
  • Энергетическая сертификация

    Не классифицирована
Откройте для себя каждый уголок объекта недвижимости
+2
Доп. опции

Свяжитесь с рекламодателем

Или