Двухкомнатная квартира Turanj, Sveti Filip I Jakov, Sveti Filip i Jakov

€ 194 496
2
61 m²
1
T
Да

Пометка

Объявление обновлено 20.03.2026
Описание

This description has been translated automatically and may not be accurate

ID: 443

Apartment A1 for sale, located on the ground floor of a modern new development in an attractive and peaceful area of Turanj, just 250 m from the sea and 700 m from the town center.

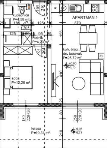
The apartment has a total area of 61.53 m² and consists of:

Hallway – 4.23 m²
Living room, kitchen and dining area – 25.72 m²
Bedroom – 12.20 m²
Bathroom – 4.58 m²
Terrace – 15.94 m²
Terrace – 4.50 m²

The apartment includes a private garden area and one parking space.

The building consists of four floors with a total of nine luxury apartments and is equipped with an elevator, providing additional comfort.

Construction quality and features:

Reinforced concrete structure (foundations, slabs and staircase)
Load-bearing brick walls
ETICS façade system with 10 cm thermal insulation
PVC external joinery with insulated glass and aluminum shutters (RAL installation)
Fire-resistant entrance doors (EI2-30-C)
Flooring: ceramic tiles and parquet
Floors connected by reinforced concrete staircase and elevator
Building connected to the public sewage system

The planned move-in date is 06/2027.

An excellent opportunity for family living, holiday use, or as an investment for tourist rental.

For additional information or to arrange a viewing, please feel free to contact us.

ID CODE: 443

Andro Jakoliš
Mob: +385 99 347 3562
E-mail: andro@materra.estate
www.materra.estate
Характеристики
Типология
Квартира
Договор
Продажа
Этаж
Нулевой этаж
Этажность здания
2
Лифт
Да
Площадь
61 m²
Помещения
2
Спальни
1
Ванные
1
Балкон
Нет
Терраса
Нет
Гараж, машиноместа
1 в общая парковка/гараж
Информация о ценах
Цена
€ 194 496
Цена за м²
3 188 €/m²
Энергоэффективность
  • Год постройки

    2026
  • Энергетическая сертификация

    Не классифицирована
Откройте для себя каждый уголок объекта недвижимости
+10
Доп. опции

Свяжитесь с рекламодателем

Или