Двухкомнатная квартира Okrug Gornji, Okrug

€ 220 000
2
65 m²
T
Терраса

Пометка

Объявление обновлено 03.03.2026
Описание

ID: EUROVILLA-150491

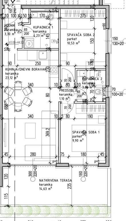
Čiovo, Okrug Gornji, dvosoban stan položen u prizemlju modernog objekta s bazenom i liftom, u izgradnji.Stan S2 se sastoji od ulaznog hodnika, dvije spavaće sobe, dvije kupaonice, kuhinje s blagovaonicom i dnevnog boravka s izlazom na natkrivenu terasu površine 14, 63 m2. Površina zatvorenog stambenog dijela iznosi 55, 46 m2, a ukupna 65 m2.U cijenu je uračunato jedno vanjsko nenatkriveno parkirno mjesto.Objekt je smještan na južnoj strani Čiova, na odličnoj lokaciji, jako blizu uređenih plaža, restorana, trgovina,….Za sva ostala pitanja, stojim na raspolaganju.... Više na eurovilla.hr, ID: 150491
Если вы хотите узнать больше, вы можете поговорить с Josipa Serdarušić.
Характеристики
Типология
Квартира
Договор
Продажа
Этаж
Нулевой этаж
Площадь
65 m²
Помещения
2
Спальни
2
Терраса
Да
Деталь поверхности

Жилой фонд

Этаж
Нулевой этаж
Площадь
65,0 m²
Коэффициент
100%
Тип площади
Основная
Коммерческая площадь
65,0 m²
Информация о ценах
Цена
€ 220 000
Цена за м²
3 385 €/m²
Энергоэффективность
  • Состояние

    Новое / На стадии строительства
  • Энергетическая сертификация

    Не подлежащий
Планировка
Откройте для себя каждый уголок объекта недвижимости
+16
Доп. опции

Свяжитесь с рекламодателем

Или