Двухкомнатная квартира Sveti Petar na Moru, Sveti Filip i Jakov

€ 267 000
2
76 m²
T
Терраса

Пометка

Объявление обновлено 03.03.2026
Описание

ID: EUROVILLA-171145

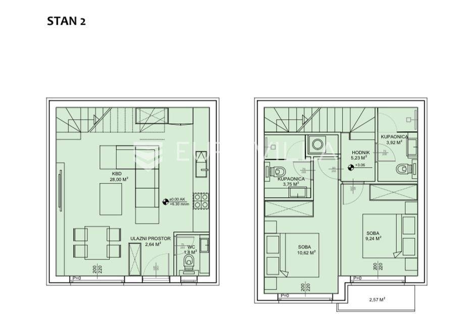
U predivnom malenom mjestu Sv. Petar na Moru gradi se moderni stambeni objekt s 9 stambenih jedinica na udaljenosti od plaže od 180 m.Dvoetažni stan S2 koji se nalazi u prizemlju i na prvom katu objekta površine 72,55 m2, sastoji se od prostranog dnevnog prostora površine 28 m2 (kuhinja, blagovaonica i dnevni boravak), dvije spavaće sobe površina 10 m2 i 9 m2, dvije kupaonice, lođe i natkrivene terase.Stanu pripada vrt površine 7 m2 i vanjsko parkirno mjesto.Stan će biti opremljen klima uređajima u spavaćim sobama i dnevnom prostoru. U kupaonicama će biti postavljeno podno grijanje a podne obloge će biti od laminat parketa ili keramičkih pločica. Stakla su troslojna a vanjska izolacija je od 10 cm stiropora.Ukupna obračunska površina stana je 76,05 m2.Objekt je orijentacije jug.Predviđeni završetak radova i useljenje je do kraja 2027 godine.Malo o lokaciji: mjesto Sveti Petar na Moru je dio općine Sveti Filip i Jakov i udaljen je 20 km jugoistočno od grada Zadra i svega 8 km sjeverozapadno od starog kraljevskog grada Biograd na Moru.U neposrednoj blizini nalaze se prekrasne plaže a u akvatoriju mjesta se nalazi nekoliko malih otočića zbog čega je ovo mjesto zahvalno za ljubitelje brodskih izleta.Na području općine Sveti Filip i Jakov poznati su vrijedni arheološki nalazi i sakralni spomenici, te karakteristični autentični lokaliteti. Cjelokupno područje općine predstavlja izuzetnu arheološku cjelinu pa je poželjna destinacija za sve ljubitelje istraživanja prirode i bogate prošlosti.Dodatne informacije - udaljenosti od važnijih lokacija:More: 180 m / Plaža: 180 m / Zadar 20 km / Zračna luka 15 kmKupovina: 100 m / restoran: 100 m / ljekarna 5 km / centar mjesta 200 mZa sva dodatna pitanja stojim na raspolaganju.... Više na eurovilla.hr, ID: 171145
Если вы хотите узнать больше, вы можете поговорить с Domagoj Zekan.
Характеристики
Типология
Квартира
Договор
Продажа
Этаж
Нулевой этаж
Площадь
76 m²
Помещения
2
Спальни
2
Терраса
Да
Деталь поверхности

Жилой фонд

Этаж
Нулевой этаж
Площадь
76,1 m²
Коэффициент
100%
Тип площади
Основная
Коммерческая площадь
76,1 m²
Информация о ценах
Цена
€ 267 000
Цена за м²
3 513 €/m²
Энергоэффективность
  • Состояние

    Новое / На стадии строительства
  • Энергетическая сертификация

    Не подлежащий
Планировка
Откройте для себя каждый уголок объекта недвижимости
+11
Доп. опции

Свяжитесь с рекламодателем

Или