Студия Veliko Brdo, Makarska

€ 178 520
1
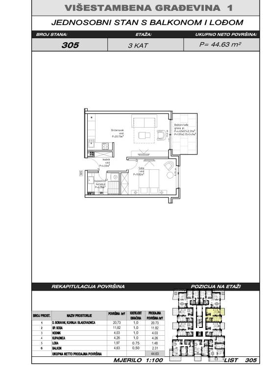
44 m²
3
Балкон

Пометка

Объявление обновлено 03.03.2026
Описание

ID: EUROVILLA-229237

Predstavljamo ekskluzivan jednosoban stan u novogradnji, Makarska. Ovaj elegantan stan od 44.63 m2, smješten na trećem katu zgrade s liftom, nudi vrhunsku udobnost i pristupačnost. Idealna pozicija osigurava mirno okruženje, spektakularne poglede na more i otoke te blizinu svih ključnih sadržaja. Savršen je za luksuzan život, opuštajući odmor ili kao unosnu investiciju na jednoj od najpoželjnijih lokacija na Jadranu.Stan se sastoji od prostranog dnevnog boravka otvorenog koncepta s kuhinjom i blagovaonicom, komforne spavaće sobe, moderne kupaonice te izlaza na privatni balkon i loggiu. Dizajniran je s naglaskom na funkcionalnost i estetiku, koristeći visokokvalitetne materijale i opremu. Velike staklene površine osiguravaju obilje prirodnog svjetla. Zgrada s liftom i pozicija na trećem katu garantira neometan pogled na Jadransko more i makarsku rivijeru. Blizina plaža, restorana i šetnice obogaćuje ovu lokaciju. Ne propustite priliku postati vlasnikom dijela makarskog raja.Za sve ostale informacije na upit.... Više na eurovilla.hr, ID: 229237
Если вы хотите узнать больше, вы можете поговорить с Duško Mišković.
Характеристики
Типология
Квартира
Договор
Продажа
Этаж
3
Площадь
44 m²
Помещения
1
Спальни
1
Балкон
Да
Деталь поверхности

Жилой фонд

Этаж
3
Площадь
44,6 m²
Коэффициент
100%
Тип площади
Основная
Коммерческая площадь
44,6 m²
Информация о ценах
Цена
€ 178 520
Цена за м²
4 057 €/m²
Энергоэффективность
  • Состояние

    Новое / На стадии строительства
  • Энергетическая сертификация

    Не подлежащий
Планировка
Откройте для себя каждый уголок объекта недвижимости
+7
Доп. опции

Свяжитесь с рекламодателем

Или