Двухкомнатная квартира Veliko Brdo, Makarska

€ 303 654
2
77 m²
3
Балкон

Пометка

Объявление обновлено 03.03.2026
Описание

ID: EUROVILLA-388539

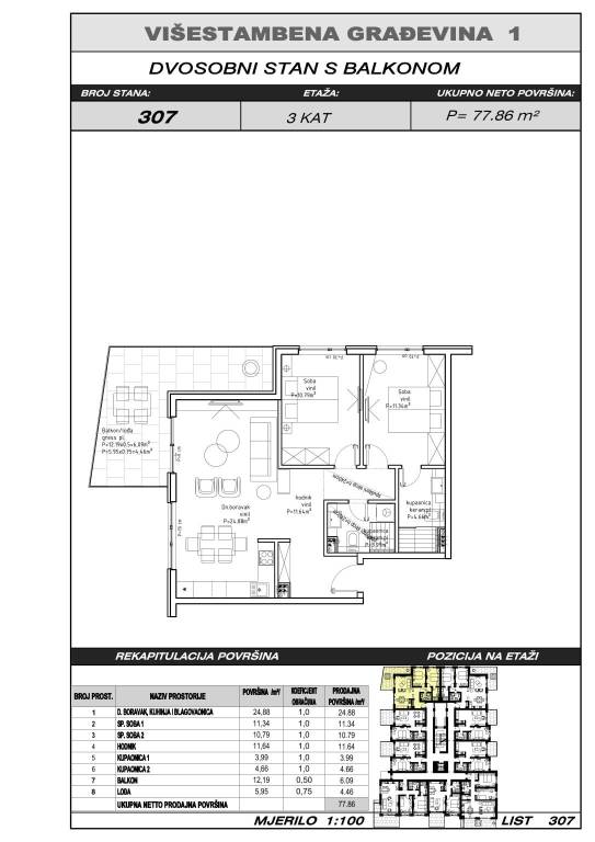
Otkrijte luksuzan dvosoban stan u novogradnji, smješten na prestižnoj lokaciji u Makarskoj. Ova izvanredna nekretnina nudi spoj modernog dizajna, vrhunske kvalitete gradnje i neponovljivog pogleda na Jadransko more i otoke. Idealna je za udoban život ili isplativu investiciju u srcu Dalmacije.Stan se nalazi na trećem katu zgrade s liftom i prostire se na 77.86 m2. Tlocrt obuhvaća dvije spavaće sobe i dvije kupaonice, osiguravajući privatnost i funkcionalnost. Otvoreni koncept dnevnog boravka, blagovaonice i kuhinje stvara prozračan i svijetao prostor. Prostrani balkon i loggia savršeni su za uživanje u mediteranskoj klimi i panoramskim pogledima. Novogradnja jamči visoke standarde gradnje i energetsku učinkovitost. Lokacija osigurava mir i privatnost, uz brz pristup svim ključnim sadržajima Makarske – plažama, šetnicama, restoranima i trgovinama. Ovaj stan predstavlja iznimnu priliku za posjedovanje dijela dalmatinskog raja. Ne propustite ovu jedinstvenu ponudu za život u mediteranskom stilu.Za sve ostale informacije na upit.... Više na eurovilla.hr, ID: 388539
Если вы хотите узнать больше, вы можете поговорить с Duško Mišković.
Характеристики
Типология
Квартира
Договор
Продажа
Этаж
3
Площадь
77 m²
Помещения
2
Спальни
2
Балкон
Да
Деталь поверхности

Жилой фонд

Этаж
3
Площадь
77,9 m²
Коэффициент
100%
Тип площади
Основная
Коммерческая площадь
77,9 m²
Информация о ценах
Цена
€ 303 654
Цена за м²
3 944 €/m²
Энергоэффективность
  • Состояние

    Новое / На стадии строительства
  • Энергетическая сертификация

    Не подлежащий
Планировка
Откройте для себя каждый уголок объекта недвижимости
+7
Доп. опции

Свяжитесь с рекламодателем

Или