Студия Pakoštane, Pakoštane

€ 200 000
1
46 m²
2
Терраса

Пометка

Объявление обновлено 02.04.2026
Описание

ID: EUROVILLA-456703

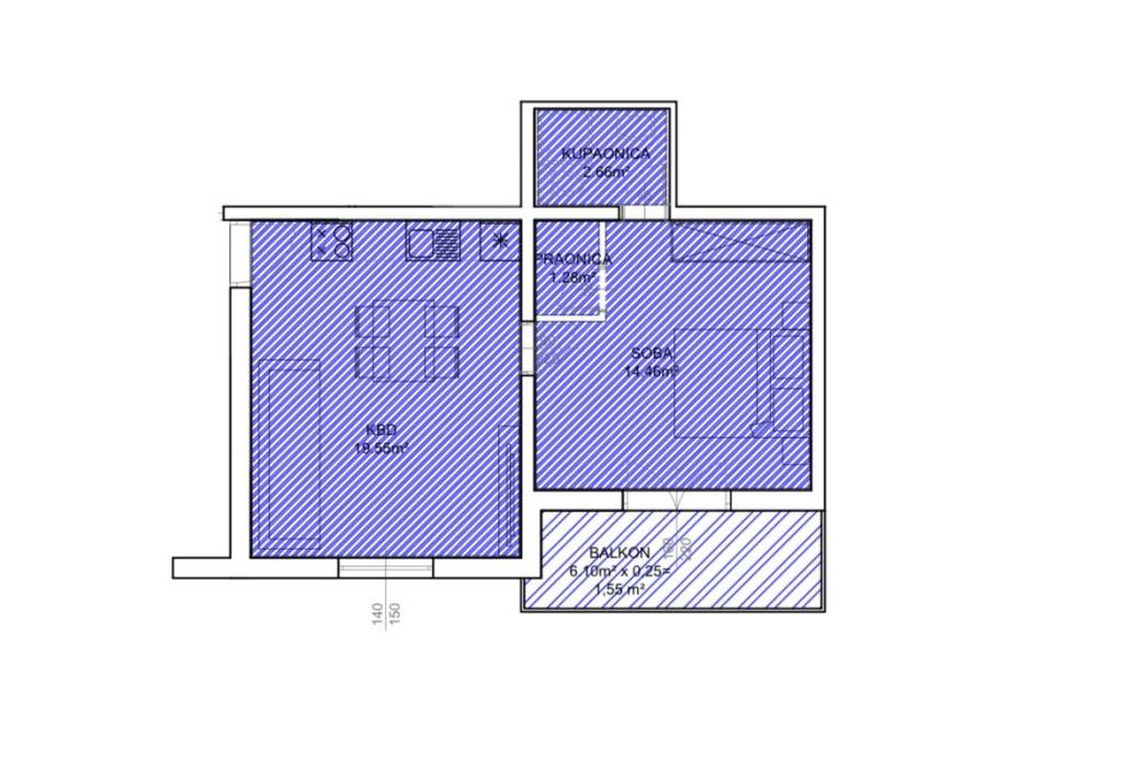
U skrivenom dragulju sjeverne Dalmacije, mjestu Pakoštane smještenom u samom središtu Jadranske obale i jedinstvenom položaju između obale i Vranskog jezera gradi se objekt s 9 apartmana na pješačkoj udaljenosti od plaže od 250 m. Zahvaljujući izoliranoj poziciji unutar zelenog pojasa lokacija objekata pruža izuzetan mir.Svi apartmani će biti opremljeni klima uređajima u spavaćim sobama i dnevnom prostoru. U kupaonicama će biti postavljeno podno grijanje a podne obloge će biti od laminat parketa ili keramičkih pločica. Stakla će biti troslojna a vanjska izolacija će biti od 10 cm stiropora.Svi apartmani će imati osigurano parking mjesto, ostavu i zajednički bazen.Jednosobni apartman S11 na drugom katu objekta površine od 64 m2 sastoji se od dnevnog prostora površine 19,5 m2 (kuhinja, blagovaonica i dnevni boravak), jedne spavaće sobe površine 14 m2, kupaonice površine 2,66 m2, praonice površine 1,28 m2 i nenatkrivene terase površine 6 m2.Ukupna obračunska površina apartmana sa svim pripadcima je 46 m2.Apartman je orijentacije zapad.Predviđeni završetak objekta je do Ožujka 2026 godine.Malo o lokaciji: Pakoštane na zapadu graniče s mjestom Biograd na moru a okružuju ga četiri nacionalna parka (Kornati, Krka, Paklenica i Plitvička jezera) i dva parka prirode (Telašćica i Vransko Jezero).Prva spominjanja mjesta Pakoštane datiraju iz 15 stoljeća, dok se u rimsko doba na mjestu današnjih Pakoštana nalazila luka rimskog grada Asseriae zbog čega mjesto obiluje povijesnim ostacima iz Rimskog doba. Osim samog mjesta, i u okolici Pakoštana se nalaze mjesta povijesnog značenja zbog čega je ovaj kraj izuzetno zahvalan za ljubitelje povijesnih znamenitosti.U samom mjestu se nalaze prekrasne plaže a u akvatoriju mjesta se nalazi 5 malih otočića zbog čega je ovo mjesto zahvalno za ljubitelje brodskih izleta.Ako želite osjetiti izvorni duh dalmatinskog mjesta a istovremeno ste pustolov željan istraživanja ljepota prirode i bogate prošlosti, Pakoštane su pravi izbor za Vas.Dodatne informacije – udaljenosti od važnijih lokacija:More: 250 m / Plaža: 250 m / Zadar 33 km / Zračna luka 27 kmKupovina: 1000 m / restoran: 650 m / ljekarna 1000 m / centar mjesta 1000 mZa sve ostale informacije stojim na raspolaganju.... Više na eurovilla.hr, ID: 456703
Если вы хотите узнать больше, вы можете поговорить с Domagoj Zekan.
Характеристики
Типология
Квартира
Договор
Продажа
Этаж
2
Площадь
46 m²
Помещения
1
Спальни
1
Терраса
Да
Деталь поверхности

Жилой фонд

Этаж
2
Площадь
46,1 m²
Коэффициент
100%
Тип площади
Основная
Коммерческая площадь
46,1 m²
Информация о ценах
Цена
€ 200 000
Цена за м²
4 348 €/m²
Энергоэффективность
  • Состояние

    Новое / На стадии строительства
  • Энергетическая сертификация

    Не подлежащий
Планировка
Откройте для себя каждый уголок объекта недвижимости
+18
Доп. опции

Свяжитесь с рекламодателем

Или