Студия Borik, Diklo - Puntamika, Задар

€ 900/месяц
1
53 m²
2
Терраса

Пометка

Объявление обновлено 13.03.2026
Описание

ID: EUROVILLA-471732

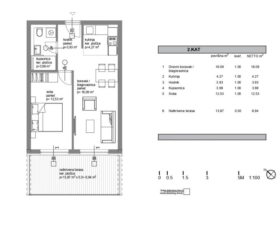
Zadar, Borik, NOVOGRADNJA, moderan stan zatvorene površine 40,79 m2 na 2. katu izvrsne zgrade izgrađene 2023. godine na idealnoj lokaciji u neposrednoj blizini centra grada, odlična prometna povezanost, blizina svih bitnih sadržaja.Stan se sastoji od ulaznog prostora, dnevnog boravka, kuhinje i blagovaonice otvorenog tlocrta s izlazom na natkrivenu terasu 13,87 m2, kupaonice i spavaće sobe. Pripada mu vanjsko parkirno mjesto 13,75 m2. Ukupno obračunski 53,94 m2.Potpuno opremljen i namješten. Hrastov pod, klimatizirano, televizor, alu stolarija, protuprovalna vrata…Sve dodatne informacije na upit.... Više na eurovilla.hr, ID: 471732
Если вы хотите узнать больше, вы можете поговорить с Doris Hromin.
Характеристики
Типология
Квартира
Договор
Аренда
Этаж
2
Площадь
53 m²
Помещения
1
Спальни
1
Терраса
Да
Деталь поверхности

Жилой фонд

Этаж
2
Площадь
53,9 m²
Коэффициент
100%
Тип площади
Основная
Коммерческая площадь
53,9 m²
Информация о ценах
Цена
€ 900/месяц
Цена за м²
17 €/m²
Подробности о расходах
Залог
Неуказана
Энергоэффективность
  • Состояние

    Новое / На стадии строительства
  • Энергетическая сертификация

    Не подлежащий
Планировка
Откройте для себя каждый уголок объекта недвижимости
+11
Доп. опции

Свяжитесь с рекламодателем

Или