Двухкомнатная квартира Omiš, Omiš

€ 251 905
2
60 m²
3
Терраса

Пометка

Объявление обновлено 03.03.2026
Описание

ID: EUROVILLA-487531

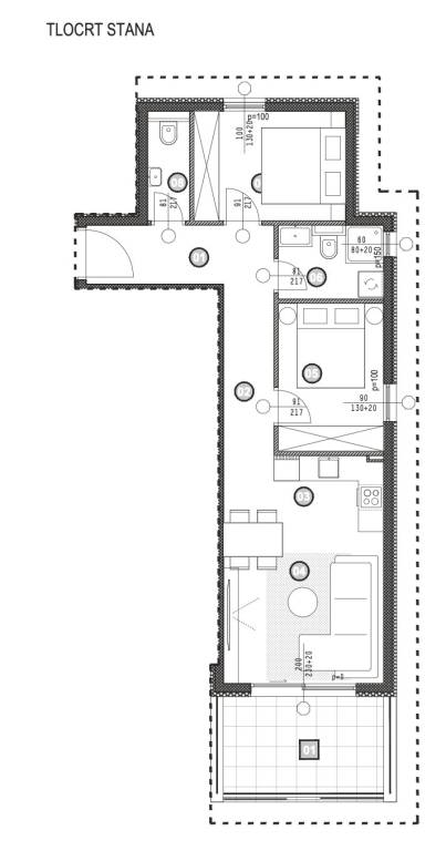
Omiš, moderan stambeno-poslovna zgrada s ukupno dvanaest stambenih jedinica - predivan i otvoren pogled na more.STAN 7- dvosoban stan na trećem katu zatvorene površine 55,95 m2, s balkonom površine 9,50 m2.Stan se sastoji se od ulaznog hodnika, dvije spavaće sobe, jedne kupaonice, jednog WCa, kuhinje s blagovaonicom, te dnevnog boravka s izlazom na balkon.Uz stan moguća je kupnja privatne garaže površine 16, 56 m2 po cijeni od 22 000, 00 EUR-a, te vanjskog parkrinog mjesta površine 12, 50 m2 po cijeni od 17 000, 00 EUR-a.Useljenje je predviđeno krajem 2026. godine.Oprema: podno grijanje u kupaonicama, klimatizirana svaka prostorija, ALU stolarija, protuprovalna ulazna vrata, verhnski parket, keramika i sanitarna oprema...Lokacija - na dvije minute vožnje od centra Omiša, okružena zelenilom i s predivnim pogledom na more. Najbliža plaža je udaljena 200 metara zračne linije.Za sve ostale informacije stojimo Vam na raspolaganju.... Više na eurovilla.hr, ID: 487531
Если вы хотите узнать больше, вы можете поговорить с Josipa Serdarušić.
Характеристики
Типология
Квартира
Договор
Продажа
Этаж
3
Площадь
60 m²
Помещения
2
Спальни
2
Терраса
Да
Деталь поверхности

Жилой фонд

Этаж
3
Площадь
60,7 m²
Коэффициент
100%
Тип площади
Основная
Коммерческая площадь
60,7 m²
Информация о ценах
Цена
€ 251 905
Цена за м²
4 198 €/m²
Энергоэффективность
  • Состояние

    Новое / На стадии строительства
  • Энергетическая сертификация

    Не подлежащий
Планировка
Откройте для себя каждый уголок объекта недвижимости
+18
Доп. опции

Свяжитесь с рекламодателем

Или