Двухкомнатная квартира Trogir, Seget

€ 170 000
2
48 m²
T
Терраса

Пометка

Объявление обновлено 03.03.2026
Описание

ID: EUROVILLA-506466

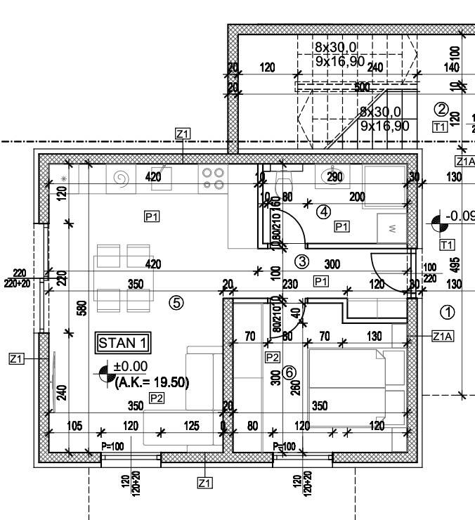
Trogir, jednosoban stan na etaži prizemlja stambene zgrade s privatnim vrtom.Z6 – S1 - stan je funkcionalnog rasporeda, a se sastoji od ulaznog hodnika, spavaće sobe, kupaonice, kuhinje s blagovaonicom te dnevnog boravka.Površina zatvorenog stambenog dijela iznosi 40, 30 m², a površina vrta koji okružuje stan s zapadne i sjeverne strane je 49, 50 m².U cijenu je uključeno jedno vanjsko parkirno mjesto.Početak gradnje je planiran za jesen 2026. Godine.Nekretnina je pogodna za miran obiteljski život u blizini svih potrebnih sadržaja ( trgovačkog centra Marisa, vrtića, ... ) , odmor ili kao investicija za turistički najam. Za sve dodatne informacije stojimo vam na raspolaganju.... Više na eurovilla.hr, ID: 506466
Если вы хотите узнать больше, вы можете поговорить с Josipa Serdarušić.
Характеристики
Типология
Квартира
Договор
Продажа
Этаж
Нулевой этаж
Площадь
48 m²
Помещения
2
Спальни
2
Терраса
Да
Деталь поверхности

Жилой фонд

Этаж
Нулевой этаж
Площадь
48,7 m²
Коэффициент
100%
Тип площади
Основная
Коммерческая площадь
48,7 m²
Информация о ценах
Цена
€ 170 000
Цена за м²
3 542 €/m²
Энергоэффективность
  • Состояние

    Новое / На стадии строительства
  • Энергетическая сертификация

    Не подлежащий
Планировка
Откройте для себя каждый уголок объекта недвижимости
+17
Доп. опции

Свяжитесь с рекламодателем

Или