Двухкомнатная квартира Omiš, Omiš

€ 349 372
2
75 m²
1
Балкон

Пометка

Объявление обновлено 24.03.2026
Описание

ID: EUROVILLA-538310

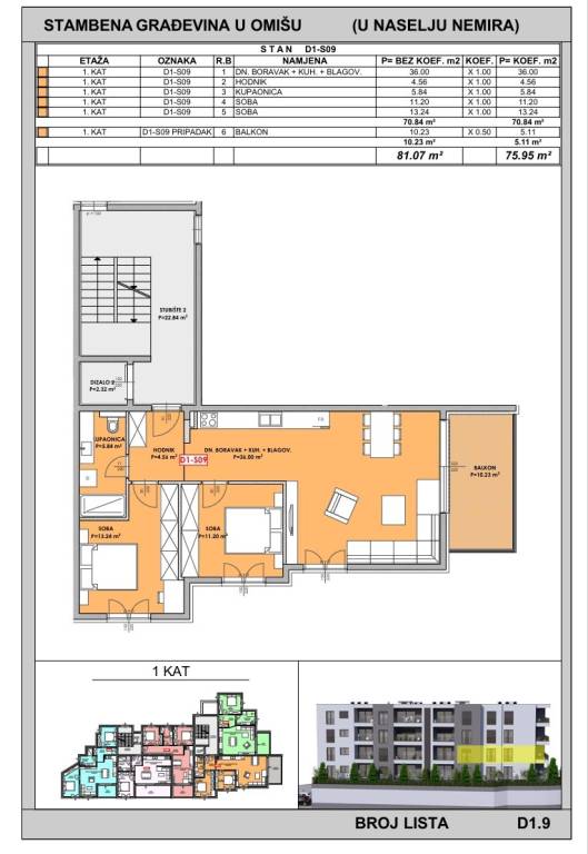
Omiška rivijera, dvosoban stan južne orijentacije, u modernoj novogradnji udaljenoj samo 150 metara od mora.STAN S9 nalazi se na prvom katu zgrade i ima 70.84 m2 zatvorene stambene površine. Sastoji se od dvije spavaće sobe, hodnika, kupaonice, kuhinje s blagovaonicom i dnevnog boravka. Iz blagovaonice i dnevnog boravka se izlazi na balkon površine 10.23 m2.Uz stan je moguća kupnja garažnog ili vanjskog parkirnog mjesta, kao i ostave.Oprema: podno grijanje u dnevnom boravku i kupaonici, klima uređaj u sobi i dnevnom boravku, električne rolete, PVC stolarija s troslojnim staklom, klizne aluminijske stijene, staklena ograda, kvalitetna keramika i sanitarna oprema.Zgrada se nalazi u mirnom naselju, svega 145 metara od mora i prekrasnih plaža. Blizina grada Omiša, udaljenog samo 1,5 kilometara, omogućuje jednostavan pristup svim potrebnim sadržajima. Split je udaljen 25 kilometara, a Zračna luka 45 kilometara.Kupac ne plaća porez na promet nekretnina za stanove iz ovog projekta.Planirani završetak gradnje je krajem 2027. godine.Za više informacija, stojimo vam na raspolaganju.... Više na eurovilla.hr, ID: 538310
Если вы хотите узнать больше, вы можете поговорить с Lucija Medak.
Характеристики
Типология
Квартира
Договор
Продажа
Этаж
1
Площадь
75 m²
Помещения
2
Спальни
2
Балкон
Да
Деталь поверхности

Жилой фонд

Этаж
1
Площадь
76,0 m²
Коэффициент
100%
Тип площади
Основная
Коммерческая площадь
76,0 m²
Информация о ценах
Цена
€ 349 372
Цена за м²
4 658 €/m²
Энергоэффективность
  • Состояние

    Новое / На стадии строительства
  • Энергетическая сертификация

    Не подлежащий
Планировка
Откройте для себя каждый уголок объекта недвижимости
+17
Доп. опции

Свяжитесь с рекламодателем

Или