Двухкомнатная квартира Vir, Vir

€ 270 000
2
81 m²
1
Терраса

Пометка

Объявление обновлено 03.03.2026
Описание

ID: EUROVILLA-558787

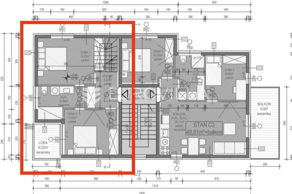
U popularnom odmaralištu sjeverne Dalmacije, mjestu Vir grade se četiri stambena objekta s 12 apartmana na pješačkoj udaljenosti od plaže od 220 m.Zgrade oznaka A, B, C i D se sastoje od 4 apartmana po objektu raspoređenih na 3 etaže (prizemlje, prvi kat i drugi kat) uz iskoristivu krovnu terasu koja se prodaje odvojeno:Objekt C - Apartman C2 na prvom i drugom katu površine 81,07 m2 orijentacije JugoistokApartman C2 se na prvom katu sastoji od spavaće sobe 1 površine 14 m2, spavaće sobe 2 površine 11 m2, kupaonice površine 6,3 m2 i lođe površine 4,3 m2. Na drugom katu sastoji se od dnevnog prostora površine 33 m2 (kuhinja, blagovaonica i dnevni boravak), lođe površine 4,32 m2 i krovne terase površine 30 m2 s prekrasnim pogledom.Svi apartmani će biti opremljeni klima uređajima u dnevnom prostoru. Podne obloge će biti od keramičkih pločica. Stakla će biti troslojna a vanjska izolacija će biti od 10 cm kamene vune.U fazi izgradnje još je moguće dogovarati uređenje interijera.U cijeni apartmana nije uključeno parkirno mjesto i ostava.Cijena parking mjesta - 8.000 euraCijena ostave - 4.000 euraNačin plaćanja: 30% prilikom potpisa predugovora / 30% pri završetku betonskih radova / 30% pri završetku fasade i unutrašnjosti / 10% nakon ishođenja uporabne dozvole.Predviđeni završetak grubih građevinskih radova je do 01.06.2026 a useljenje do ljeta 2027 godine.Za sva dodatna pitanja stojim na raspolaganju.... Više na eurovilla.hr, ID: 558787
Если вы хотите узнать больше, вы можете поговорить с Domagoj Zekan.
Характеристики
Типология
Квартира
Договор
Продажа
Этаж
1
Площадь
81 m²
Помещения
2
Спальни
2
Терраса
Да
Деталь поверхности

Жилой фонд

Этаж
1
Площадь
81,1 m²
Коэффициент
100%
Тип площади
Основная
Коммерческая площадь
81,1 m²
Информация о ценах
Цена
€ 270 000
Цена за м²
3 333 €/m²
Энергоэффективность
  • Состояние

    Новое / На стадии строительства
  • Энергетическая сертификация

    Не подлежащий
Откройте для себя каждый уголок объекта недвижимости
+9
Доп. опции

Свяжитесь с рекламодателем

Или