Двухкомнатная квартира Visoka, Kman - Visoka - Sućidar, Split

€ 331 000
2
52 m²
T

Пометка

Объявление обновлено 03.03.2026
Описание

ID: EUROVILLA-649813

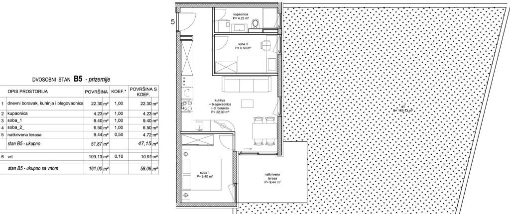
Ovaj izvanredan dvosobni stan smješten u prizemlju moderne novogradnje na Visokoj u Splitu, predstavlja savršenu kombinaciju udobnosti i stila. Stan se prostire na 52.06 m2 i nudi idealan prostor za obiteljski život ili kao investiciju.Sastoji se od dvije sobe i jedne kupaonice. Izgrađen 2025. godine, stan se može pohvaliti energetskom učinkovitošću, lođom i vrtom. Lift u zgradi olakšava pristup stanu.Lokacija stana je izuzetna, s blizinom svih važnih sadržaja - trgovina, škola, vrtića i javnog prijevoza. Visoka je mirno i ugodno naselje, idealno za one koji traže kvalitetan život u gradu.Ne propustite priliku postati vlasnikom ovog prekrasnog stana u jednoj od najpoželjnijih splitskih četvrti. Moderan dizajn, vrhunska kvaliteta gradnje i izvrsna lokacija čine ovaj stan iznimnom prilikom. Iskoristite priliku za život u luksuznom i funkcionalnom prostoru koji je pažljivo osmišljen kako bi zadovoljio sve vaše potrebe. Ovaj stan predstavlja savršen spoj elegancije i praktičnosti, idealan za moderan život u srcu Splita.Sve ostale informacije na upit.... Više na eurovilla.hr, ID: 649813
Если вы хотите узнать больше, вы можете поговорить с Duško Mišković.
Характеристики
Типология
Квартира
Договор
Продажа
Этаж
Нулевой этаж
Площадь
52 m²
Помещения
2
Спальни
2
Деталь поверхности

Жилой фонд

Этаж
Нулевой этаж
Площадь
52,1 m²
Коэффициент
100%
Тип площади
Основная
Коммерческая площадь
52,1 m²
Информация о ценах
Цена
€ 331 000
Цена за м²
6 365 €/m²
Энергоэффективность
  • Состояние

    Новое / На стадии строительства
  • Энергетическая сертификация

    Не подлежащий
Планировка
Откройте для себя каждый уголок объекта недвижимости
+18
Доп. опции

Свяжитесь с рекламодателем

Или