Двухкомнатная квартира Cres, Cres

€ 405 000
2
75 m²
3
Терраса

Пометка

Объявление обновлено 03.03.2026
Описание

ID: EUROVILLA-780236

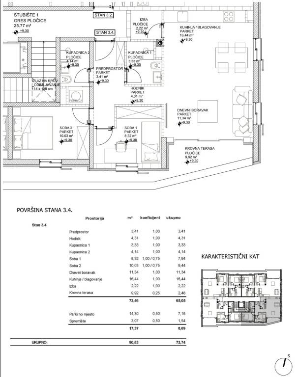
Grad Cres, Centar, trosoban stan s krovnom terasom na odličnoj lokaciji, NOVOGRADNJA.U samom centru grada Cresa, na svega 100 metara od mora i u neposrednoj blizini povijesne gradske jezgre, smješten je ovaj funkcionalno organiziran i moderno koncipiran trosoban stan s krovnom terasom, unutar suvremene poslovno-stambene zgrade visoke kvalitete gradnje.Stan se nalazi na trećem katu zgrade te ima ukupnu obračunsku površinu 73,74 m², dok stvarna površina stana s pripadajućim dijelovima iznosi 90,83 m². Sastoji se od ulaznog prostora i hodnika, dvije kupaonice, dvije spavaće sobe, dnevnog boravka povezanog s kuhinjom i blagovaonicom, dodatne ostave te krovne terase površine 9,92 m², koja osigurava ugodan vanjski prostor i dodatni komfor stanovanja.Stanu pripada i spremište u suterenu te parkirno mjesto u podzemnoj garaži, što predstavlja značajnu prednost u centru grada.Stan je projektiran s naglaskom na funkcionalnost i udobnost, a opremljen je kvalitetnim materijalima i modernim sanitarijama, podnim grijanjem, PVC stolarijom te griljama za zaštitu od sunca.Zgrada se prostire kroz pet etaža i obuhvaća podzemnu garažu u suterenu, tri poslovna prostora u prizemlju te ukupno 14 stanova raspoređenih na tri gornje etaže. Nalazi se na iznimnoj lokaciji u samom srcu Cresa, okružena trgovinama, restoranima, kafićima, kulturnim i zabavnim sadržajima, uz odličnu dostupnost javnog prijevoza.Ova nekretnina predstavlja izvrsnu priliku za stanovanje, ali i kao investicija za turistički ili dugoročni najam, zahvaljujući svojoj lokaciji, kvaliteti gradnje i funkcionalnom rasporedu.Za dodatne informacije slobodno nas kontaktirajte!... Više na eurovilla.hr, ID: 780236
Если вы хотите узнать больше, вы можете поговорить с Borna Radović.
Характеристики
Типология
Квартира
Договор
Продажа
Этаж
3
Площадь
75 m²
Помещения
2
Спальни
2
Терраса
Да
Деталь поверхности

Жилой фонд

Этаж
3
Площадь
75,0 m²
Коэффициент
100%
Тип площади
Основная
Коммерческая площадь
75,0 m²
Информация о ценах
Цена
€ 405 000
Цена за м²
5 400 €/m²
Энергоэффективность
  • Состояние

    Новое / На стадии строительства
  • Энергетическая сертификация

    Не подлежащий
Планировка
Откройте для себя каждый уголок объекта недвижимости
+6
Доп. опции

Свяжитесь с рекламодателем

Или