Двухкомнатная квартира Pakoštane, Pakoštane

€ 650 000
2
146 m²
T
Терраса

Пометка

Объявление обновлено 03.03.2026
Описание

ID: EUROVILLA-788946

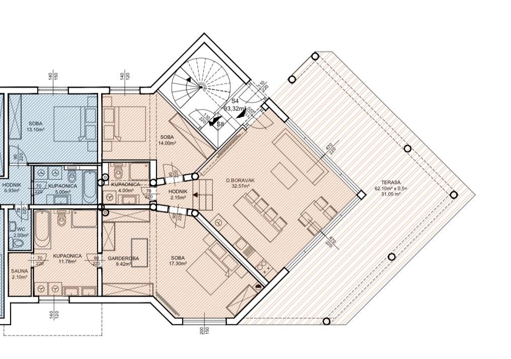
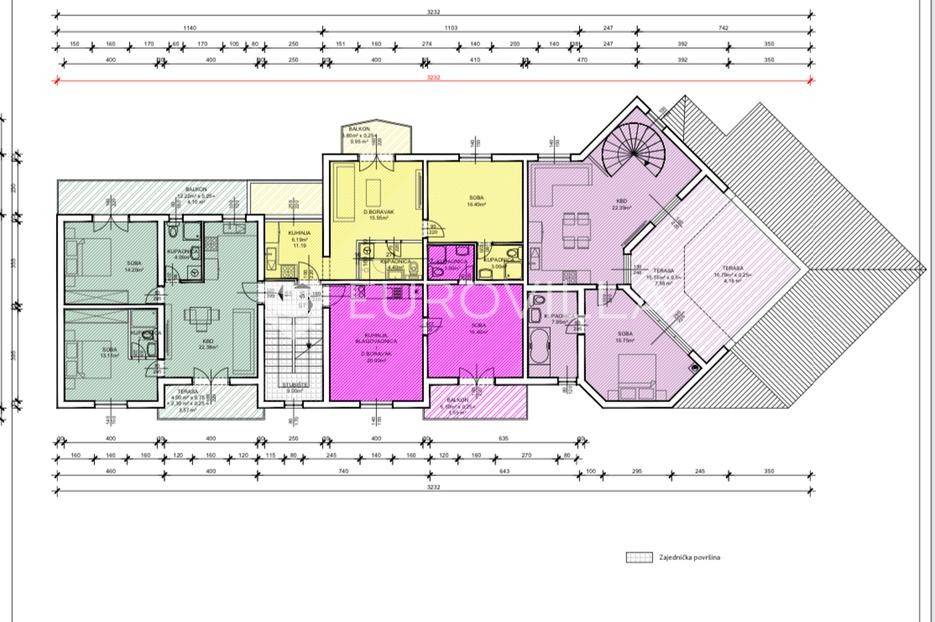
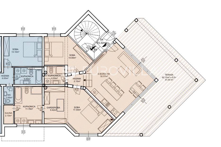
Apartman S4 u prizemlju objekta ukupne neto korisne površine od 146 m2 sastoji se od ulaznog prostora površine 2 m2, dnevnog prostora površine 33 m2 (kuhinja, blagovaonica i dnevni boravak) dvije spavaće sobe površina 15 m2 i 17 m2, garderobe površine 9 m2, dvije kupaonice površine 4 m2 odnosno 12 m2, saune površine 2 m2, natkrivene terase površine 60 m2 i vrta površine 190 m2.Apartman je orijentacije istok - jug - zapad.U skrivenom dragulju sjeverne Dalmacije, mjestu Pakoštane smještenom u samom središtu Jadranske obale i jedinstvenom položaju između obale i Vranskog jezera gradi se objekt s 9 apartmana na pješačkoj udaljenosti od plaže od 250 m. Zahvaljujući izoliranoj poziciji unutar zelenog pojasa lokacija objekata pruža izuzetan mir.Svi apartmani će biti opremljeni klima uređajima u spavaćim sobama i dnevnom prostoru. U kupaonicama će biti postavljeno podno grijanje a podne obloge će biti od laminat parketa ili keramičkih pločica. Stakla će biti troslojna a vanjska izolacija će biti od 10 cm stiropora.Svi apartmani će imati osigurano parking mjesto, ostavu i zajednički bazen.Način plaćanja je 50 % prilikom potpisa predugovora a ostatak u fazama radova.Predviđeni završetak objekta je u 12 mjesecu 2025 godine a useljenje do 5 mjeseca 2026 godine.Malo o lokaciji: Pakoštane na zapadu graniče s mjestom Biograd na moru a okružuju ga četiri nacionalna parka (Kornati, Krka, Paklenica i Plitvička jezera) i dva parka prirode (Telašćica i Vransko Jezero).Prva spominjanja mjesta Pakoštane datiraju iz 15 stoljeća, dok se u rimsko doba na mjestu današnjih Pakoštana nalazila luka rimskog grada Asseriae zbog čega mjesto obiluje povijesnim ostacima iz Rimskog doba. Osim samog mjesta, i u okolici Pakoštana se nalaze mjesta povijesnog značenja zbog čega je ovaj kraj izuzetno zahvalan za ljubitelje povijesnih znamenitosti.U samom mjestu se nalaze prekrasne plaže a u akvatoriju mjesta se nalazi 5 malih otočića zbog čega je ovo mjesto zahvalno za ljubitelje brodskih izleta.Ako želite osjetiti izvorni duh dalmatinskog mjesta a istovremeno ste pustolov željan istraživanja ljepota prirode i bogate prošlosti, Pakoštane su pravi izbor za Vas.Dodatne informacije - udaljenosti od važnijih lokacija:More: 250 m / Plaža: 250 m / Zadar 33 km / Zračna luka 27 kmKupovina: 1000 m / restoran: 650 m / ljekarna 1000 m / centar mjesta 1000 mZa sve ostale informacije stojim na raspolaganju.... Više na eurovilla.hr, ID: 788946
Если вы хотите узнать больше, вы можете поговорить с Domagoj Zekan.
Характеристики
Типология
Квартира
Договор
Продажа
Этаж
Нулевой этаж
Площадь
146 m²
Помещения
2
Спальни
2
Терраса
Да
Деталь поверхности

Жилой фонд

Этаж
Нулевой этаж
Площадь
146,1 m²
Коэффициент
100%
Тип площади
Основная
Коммерческая площадь
146,1 m²
Информация о ценах
Цена
€ 650 000
Цена за м²
4 452 €/m²
Энергоэффективность
  • Состояние

    Новое / На стадии строительства
  • Энергетическая сертификация

    Не подлежащий
Планировка
Откройте для себя каждый уголок объекта недвижимости
+19
Доп. опции

Свяжитесь с рекламодателем

Или