Студия Cres, Cres

€ 325 000
1
64 m²
2

Пометка

Объявление обновлено 03.03.2026
Описание

ID: EUROVILLA-908376

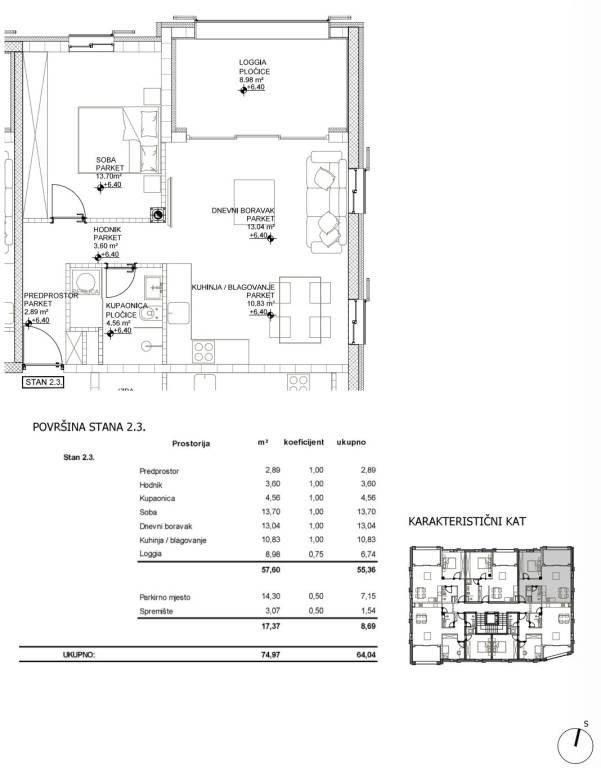
Grad Cres, Centar, dvosoban stan na odličnoj lokaciji, NOVOGRADNJA.U samom centru grada Cresa, na svega 100 metara od mora i nadomak povijesne gradske jezgre, smješten je ovaj funkcionalan i moderno koncipiran stan, unutar suvremene poslovno-stambene zgrade visoke kvalitete gradnje.Stan se nalazi na drugom katu zgrade te ima ukupnu obračunsku površinu 64,04 m², dok stvarna površina stana s pripadajućim dijelovima iznosi 74,97 m². Sastoji se od ulaznog prostora i hodnika, kupaonice, jedne spavaće sobe, dnevnog boravka povezanog s kuhinjom i blagovaonicom te prostrane loggie, koja dodatno naglašava komfor stanovanja i povezuje unutarnji i vanjski prostor.Stanu pripada i spremište u suterenu te parkirno mjesto u podzemnoj garaži, što predstavlja značajnu prednost u centru grada.Stan je projektiran s naglaskom na funkcionalnost i udobnost, a opremljen je kvalitetnim materijalima i modernim sanitarijama, podnim grijanjem, PVC stolarijom te griljama za zaštitu od sunca.Zgrada se prostire kroz pet etaža i obuhvaća podzemnu garažu u suterenu, tri poslovna prostora u prizemlju te ukupno 14 stanova raspoređenih na tri gornje etaže. Nalazi se na iznimnoj lokaciji u samom srcu Cresa, okružena trgovinama, restoranima, kafićima, kulturnim i zabavnim sadržajima, uz odličnu dostupnost javnog prijevoza.Ova nekretnina predstavlja izvrsnu priliku za stanovanje, ali i kao investicija za turistički ili dugoročni najam, zahvaljujući svojoj lokaciji, kvaliteti gradnje i funkcionalnom rasporedu.Za dodatne informacije slobodno nas kontaktirajte!... Više na eurovilla.hr, ID: 908376
Если вы хотите узнать больше, вы можете поговорить с Borna Radović.
Характеристики
Типология
Квартира
Договор
Продажа
Этаж
2
Площадь
64 m²
Помещения
1
Спальни
1
Деталь поверхности

Жилой фонд

Этаж
2
Площадь
64,0 m²
Коэффициент
100%
Тип площади
Основная
Коммерческая площадь
64,0 m²
Информация о ценах
Цена
€ 325 000
Цена за м²
5 078 €/m²
Энергоэффективность
  • Состояние

    Новое / На стадии строительства
  • Энергетическая сертификация

    Не подлежащий
Планировка
Откройте для себя каждый уголок объекта недвижимости
+6
Доп. опции

Свяжитесь с рекламодателем

Или