Студия Povljana, Povljana

€ 162 000
1
52 m²
1

Пометка

Объявление обновлено 03.03.2026
Описание

ID: EUROVILLA-918877

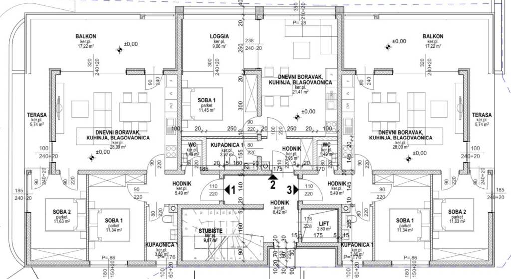
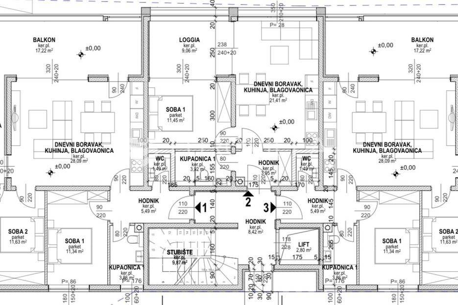
Predstavljamo Vam zgradu u novogradnji u poznatom turističkom odredištu na otoku Pagu, Povljani. Zgrada se sastoji od ukupno 8 stambenih jedinica raspoređenih na ukupno 4 etaže. Zgrada se nalazi 400 m od centra mjesta i svih sadržaja koji su potrebni za kvalitetan život ili odmor dok je od mora udaljena 800 m.STAN S5 - PRVI KAT - 52,72m2Stan S5 se nalazi na prvom katu zgrade te je ukupne neto korisne površine 52,72m2. Sastoji se od hodnika (3,95m2), otvorenog prostora kuhinje, blagovaonice i dnevnog boravka (21,41m2), spavaće sobe (11,45m2), potpuno opremljene kupaonice (3,92m2) te loggie (9,06m2). Stanu uz to pripada i spremište u podrumu zgrade (4,38m2) te jedno vanjsko parkirno mjesto.Predviđeno useljenje : 04/2026PDV JE UKLJUČEN U CIJENU STANA TE KUPAC NE PLAĆA POREZ NA PROMET NEKRETNINAMA.Od opreme i materijala valja izdvojit :Vrhunsku PVC stolariju s električnim roletama i ugrađenim komarnicimaMulti split sustav klimatizacije u svim spavaćim sobama te dnevnom boravkuToplinska izolacija debljine 10 cmPortafonLiftProtuprovalna i protupožarna vrataI još mnogo togaZa više informacija i dogovor oko razgledavanja obratite nam se s povjerenjem... Više na eurovilla.hr, ID: 918877
Если вы хотите узнать больше, вы можете поговорить с Filip Luštica .
Характеристики
Типология
Квартира
Договор
Продажа
Этаж
1
Площадь
52 m²
Помещения
1
Спальни
1
Деталь поверхности

Жилой фонд

Этаж
1
Площадь
52,7 m²
Коэффициент
100%
Тип площади
Основная
Коммерческая площадь
52,7 m²
Информация о ценах
Цена
€ 162 000
Цена за м²
3 115 €/m²
Энергоэффективность
  • Состояние

    Новое / На стадии строительства
  • Энергетическая сертификация

    Не подлежащий
Планировка
Откройте для себя каждый уголок объекта недвижимости
+9
Доп. опции

Свяжитесь с рекламодателем

Или