Двухкомнатная квартира Makarska, Makarska

€ 285 500
2
89 m²
T
Терраса

Пометка

Объявление обновлено 03.03.2026
Описание

ID: EUROVILLA-983039

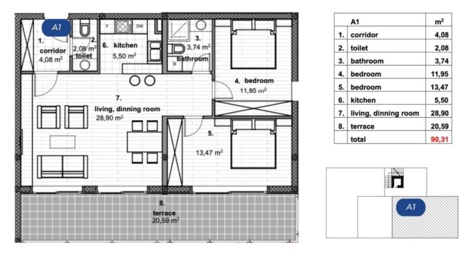
Makarska, dvosoban stan u prizemlju moderne novogradnje - useljivo odmah.Sastoji se od hodnika, dvije spavaće sobe, kupaonice, wc-a, kuhinje s blagovaonicom, dnevnog boravka i terase. Podna površina stana iznosi 69,72 m2, dok je površina terase 20,59 m2. U cijenu je uključeno jedno garažno parkirno mjesto.Stan je opremljen podnim grijanjem, a kupaonica sadrži pametni Wi-Fi bojler kojim je moguće upravljati na daljinu. Dodatnu sigurnost i praktičnost osigurava portafon unutar stana te sustav ulaza u zgradu s otključavanjem na čip.Objekt je smješten u zatvorenom kompleksu od ukupno četiri stambene zgrade, predviđene za cjelogodišnji život u predivnoj Makarskoj.Svim rezidentima će biti na raspolaganju privatni bazen.Za sve ostale informacije, stojim na raspolaganju.... Više na eurovilla.hr, ID: 983039
Если вы хотите узнать больше, вы можете поговорить с Lucija Medak.
Характеристики
Типология
Квартира
Договор
Продажа
Этаж
Нулевой этаж
Площадь
89 m²
Помещения
2
Спальни
2
Терраса
Да
Деталь поверхности

Жилой фонд

Этаж
Нулевой этаж
Площадь
89,9 m²
Коэффициент
100%
Тип площади
Основная
Коммерческая площадь
89,9 m²
Информация о ценах
Цена
€ 285 500
Цена за м²
3 208 €/m²
Энергоэффективность
  • Состояние

    Новое / На стадии строительства
  • Энергетическая сертификация

    Не подлежащий
Планировка
Откройте для себя каждый уголок объекта недвижимости
+10
Доп. опции

Свяжитесь с рекламодателем

Или